EasyManua.ls Logo

Gree GMV-S280W/A-X

Gree GMV-S280W/A-X
391 pages
To Next Page IconTo Next Page
To Next Page IconTo Next Page
To Previous Page IconTo Previous Page
To Previous Page IconTo Previous Page
Loading...
GMV5 Home DC Inverter Multi VRF Units
167
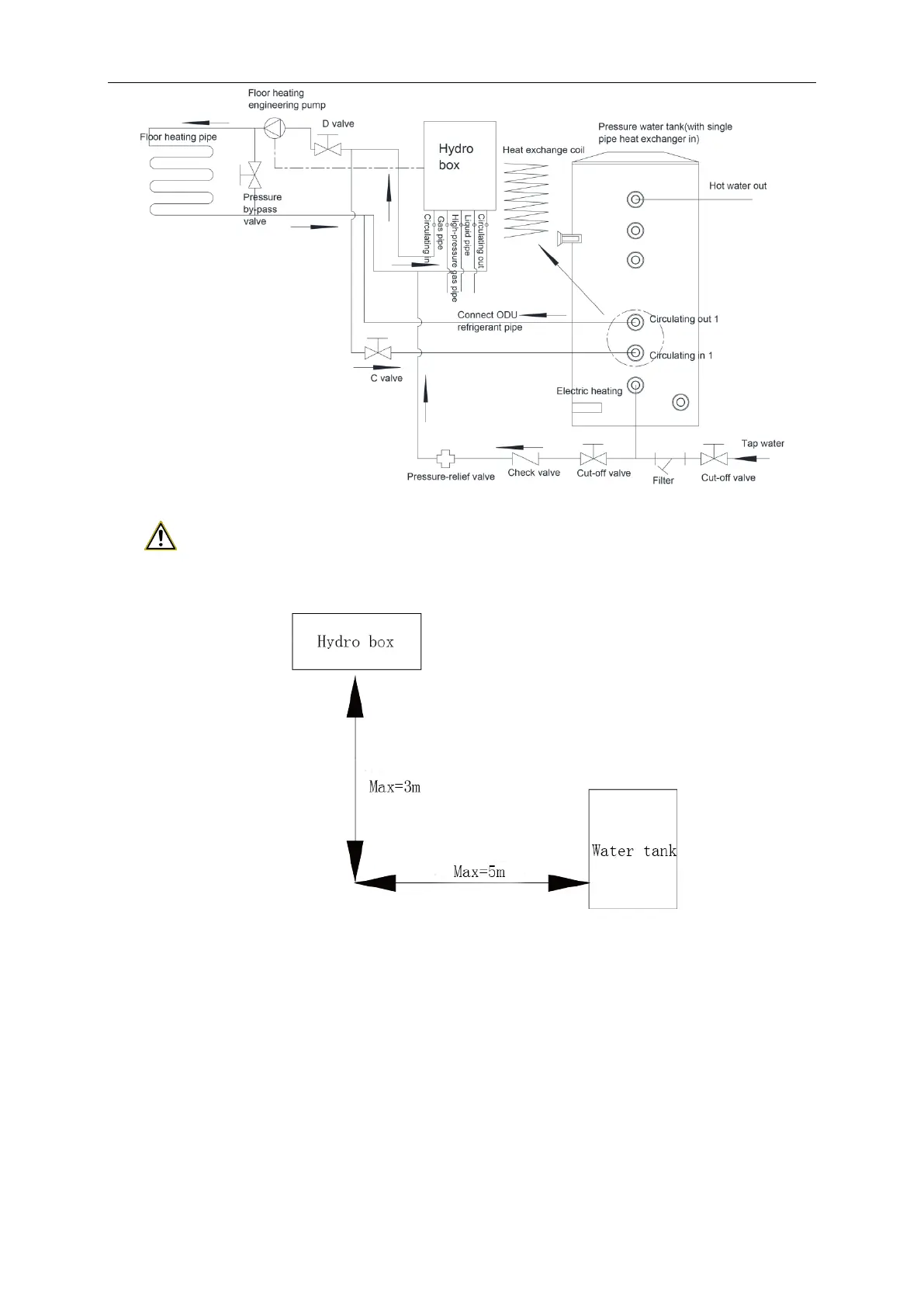
Note:
1. The horizontal distance between hydro box and thermal insulation water tank shall not
exceed 5m, and the vertical fall shall not exceed 3m. It is recommended to install the
water tank at lower and install the hydro box at upper.
2. If the total waterpower loss between floor heating pipeline and valves exceeds 6m,
please add floor heating engineering pump behind the solenoid valve D. There is control
interface reserved in the electric box of hydro box. Please connect wire according to the
wiring diagram on the electric box.
3. Prepare materials according to connector size and specification above. If the cutoff valve
is installed outdoors, it is recommended to use PPR fittings, thus to avoid freezing under
low temperature.
4. The hydro box shall be properly fixed before proceeding to installation of water pipes.
During installation of the connection pipe, prevent the dust or other foreign articles from
entering the pipe system.
5. The thermal insulation pressure water tank is supplied of hot water based on tap water
pressure. The user can have hot water only when there is tap water.
6. During use, the cutoff valve at the cold water inlet of water tank shall be kept normally
open.
7. If you put the unit out of use for a long period and cut off the power, please make sure to
drain the water thoroughly out of the hydro box and floor heating pipe, in order to prevent

Table of Contents

Related product manuals