EasyManua.ls Logo

HP ProLiant DL580 Generation 3 - Page 33

HP ProLiant DL580 Generation 3
192 pages
To Next Page IconTo Next Page
To Next Page IconTo Next Page
To Previous Page IconTo Previous Page
To Previous Page IconTo Previous Page
Loading...
Server component identification 33
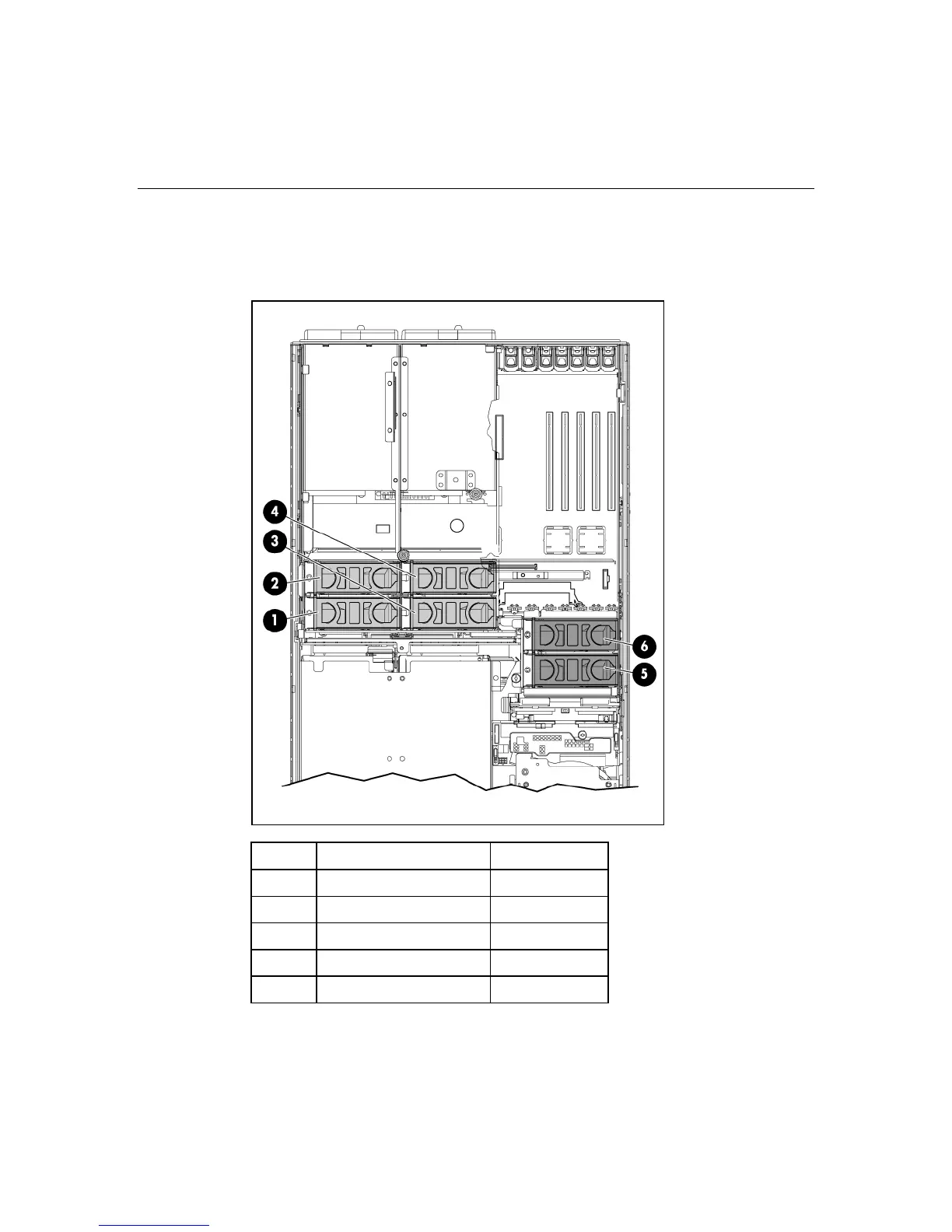
This fan configuration allows the server to continue operating in non-redundant
mode if a single fan fails in either zone. If the system detects two fan failures in
the same zone, the server shuts down to avoid thermal damage.
Item Description Zone
1 Fan 1 1
2 Fan 2 1
3 Fan 3 1
4 Fan 4 1
5 Fan 5 2

Table of Contents

Related product manuals