EasyManua.ls Logo

HPE ProLiant ML30 Gen10

HPE ProLiant ML30 Gen10
142 pages
To Next Page IconTo Next Page
To Next Page IconTo Next Page
To Previous Page IconTo Previous Page
To Previous Page IconTo Previous Page
Loading...
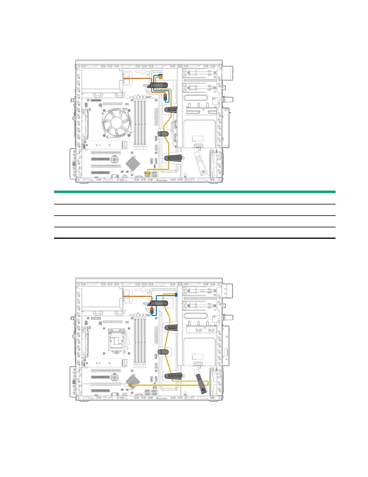
Media device cabling
SATA optical drive cabling
Cable color Description
Orange Power supply cable
Blue Optical drive power cable
Gold Optical drive SATA cable
SAS LTO tape drive cabling
SAS LTO tape drive with standard power supply
Cabling
107

Table of Contents

Other manuals for HPE ProLiant ML30 Gen10

Related product manuals