EasyManua.ls Logo

Intermec EasyCoder 501 - Page 106

Intermec EasyCoder 501
227 pages
Print Icon
To Next Page IconTo Next Page
To Next Page IconTo Next Page
To Previous Page IconTo Previous Page
To Previous Page IconTo Previous Page
Loading...
105Intermec EasyCoder 501 Service Manual Ed. 7
Chapter 13 Memory Card Adapter
13.1 Description, cont.
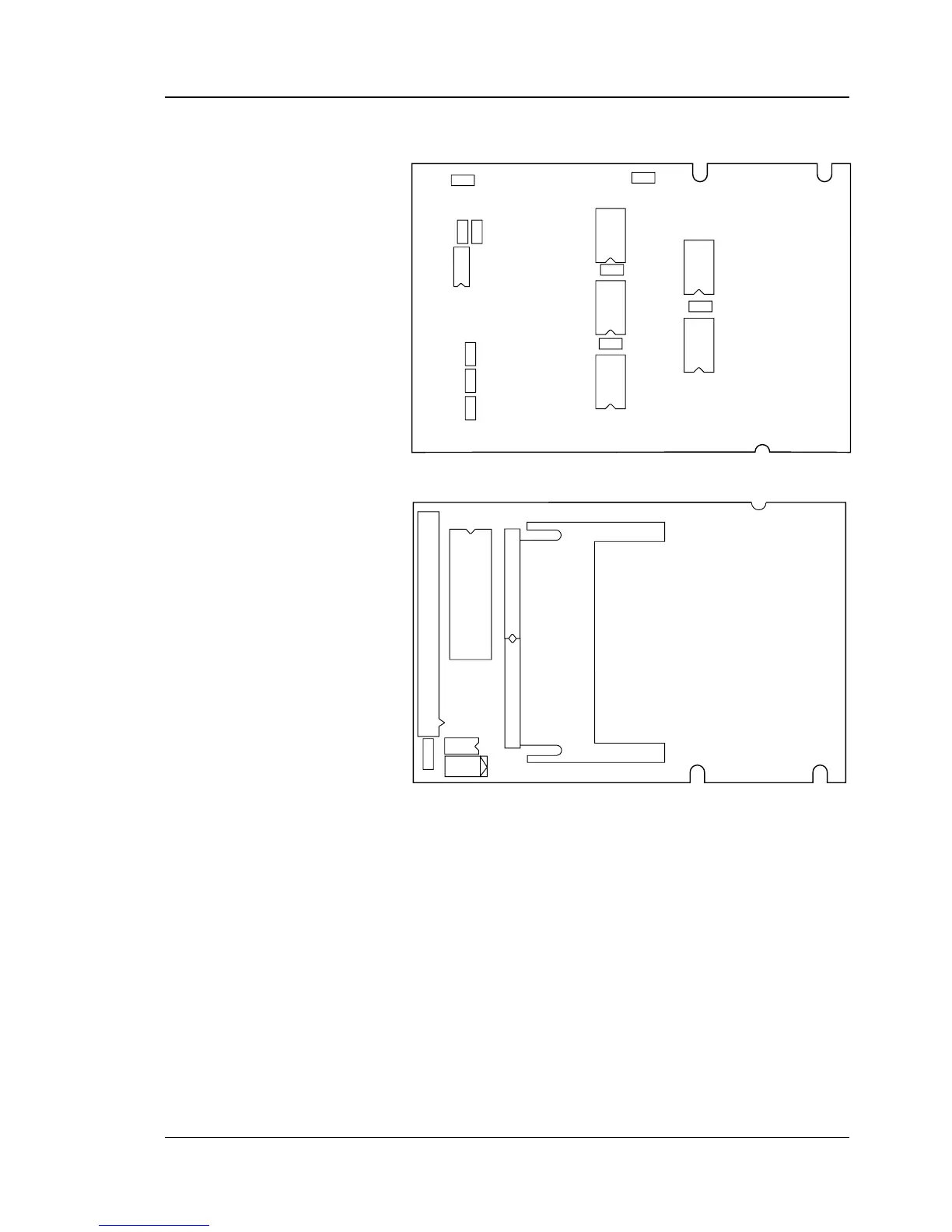
Memory Card Adapter Board; Components Diagrams
Memory Card Adapter Board 1-971706-26; Soldering Side
Memory Card Adapter Board 1-971706-26; Component Side
P 2
P 1
IC 7
D 1
C 7
RN 1
RN 2
F 1
C 5
C 3 R 2 R 5
R 1
C 2
IC 6
C 1
C 4
C 6
GNDC
IC 1
IC 4
IC 5
IC 2
IC 3

Table of Contents

Related product manuals