EasyManua.ls Logo

INVT Goodrive300-19 Series

INVT Goodrive300-19 Series
255 pages
To Next Page IconTo Next Page
To Next Page IconTo Next Page
To Previous Page IconTo Previous Page
To Previous Page IconTo Previous Page
Loading...
Goodrive300-19 series open loop vector inverter special for hosit Function parameters
-79-
Function
code
Name
Detailed instruction of parameters
Default
value
Modify
37: Motor 2 in operation
38~40: Reserved
P06.05
Polarity of
output
terminals
The function code is used to set the pole of the output
terminal.
When the current bit is set to 0, input terminal is
positive.
When the current bit is set to 1, input terminal is
negative.
BIT3
BIT2
BIT1
BIT0
RO2
RO1
HDO
Y
Setting range: 00~0F
00
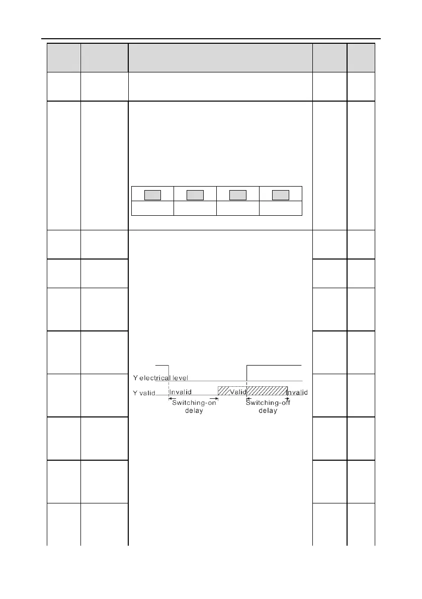
P06.06
Y switch-on
delay time
The function code defines the corresponding delay
time of the electrical level change during the
programmable terminal switching on and off.
The setting range: 0.000~50.000s
Note: P06.08 and P06.08 are valid only when
P06.00=1.
0.000s
P06.07
Y switch-off
delay time
0.000s
P06.08
HDO
switch-on
delay time
0.000s
P06.09
HDO
switch-off
delay time
0.000s
P06.10
RO1
switch-on
delay time
0.000s
P06.11
RO1
switch-off
delay time
0.000s
P06.12
RO2
switch-on
delay time
0.000s
P06.13
RO2
switch-off
delay time
0.000s

Table of Contents

Related product manuals