EasyManua.ls Logo

Jackson crew series - Page 13

Jackson crew series
94 pages
Print Icon
To Next Page IconTo Next Page
To Next Page IconTo Next Page
To Previous Page IconTo Previous Page
To Previous Page IconTo Previous Page
Loading...
4
07610-003-78-18-N
15
1
4
in
73
1
2
in
(NOTE 2)
10
1
8
in (NOTE 3)
71
5
8
in
67
1
2
in
9 in
11
1
2
in
63
5
8
in
64
1
2
in
61
1
8
in
7
3
8
in
4
1
4
in
11
1
8
in
21 in
23
1
2
in
10
7
8
in
61 in
63
1
2
in
8
3
4
in
7
5
8
in
29
1
2
in
93 in MAX
(NOTE 1)
3
3
4
in
17
1
8
in
23
3
4
in
3
8
in
2
1
4
in
7
3
4
in
19
1
8
in
14
7
8
in
26
5
8
in
TABLE to TABLE
66 in
85
1
2
in
21
1
2
in
14 in
30
5
8
in
16
5
8
in
66
1
8
in
4
3
8
in
4 in
16 in
E2
E1
SAN**
RA
W1
W2
W3***
D1
D2
S*
C*
SAN**
RA
W1
E2
E1
W2
W3***
S*
DET
C*
CP
D2
D1
CP
DET
W1
E1
E2
V2
V1
6
1
8
in
11
5
8
in
34 in
(NOTE 4)
(NOTE 4) (NOTE 4)
(NOTE 4)
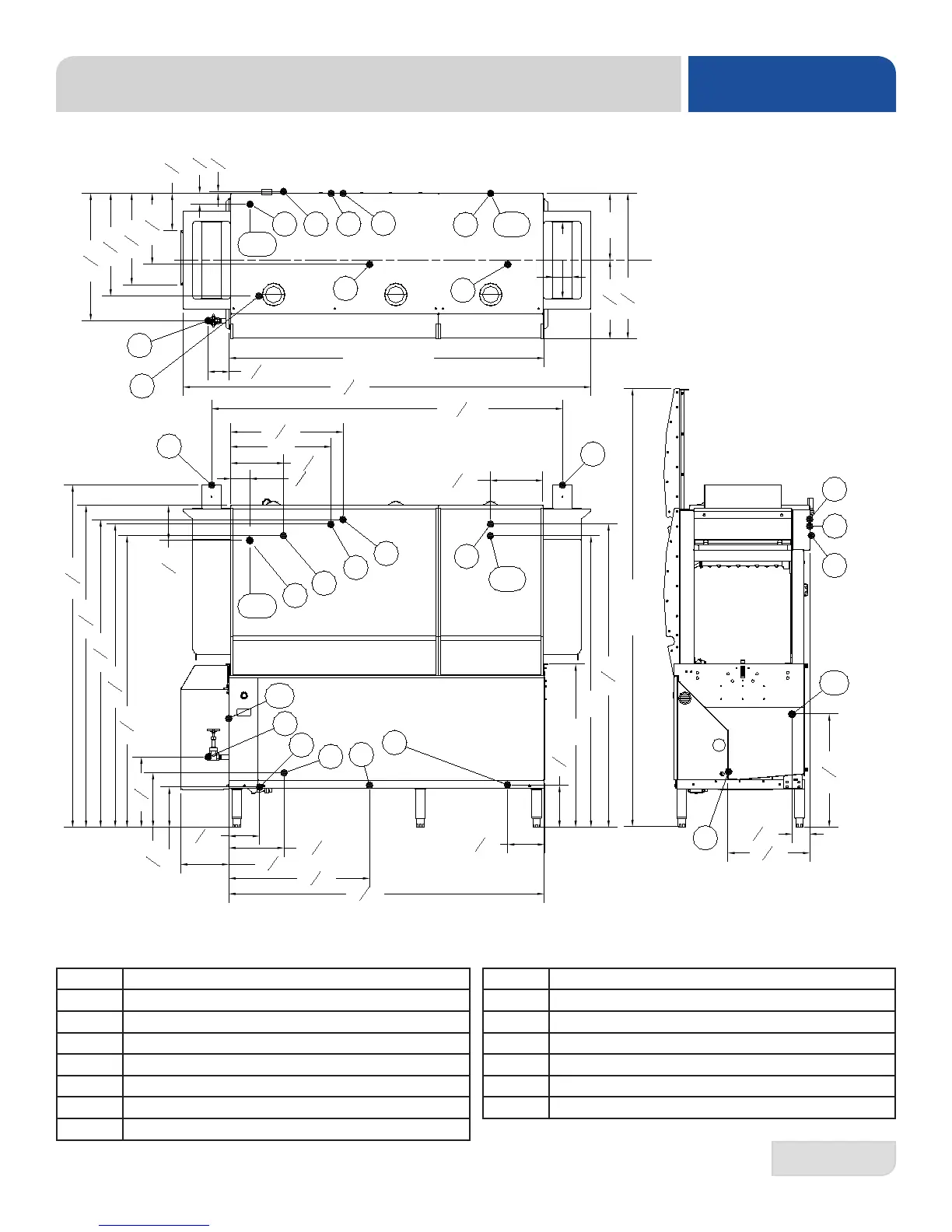
NOTE 3:
THE DRIVE ASSEMBLY AND GUARD
MAY BE INSTALLED ON EITHER END
OF THE UNIT. INSTALLATION ON THE
UNLOAD END IS STANDARD. IF
INSTALLED ON THE LOAD END,
PLEASE ENSURE ANY SCRAP SINKS
IN THE TABLING ARE AT AN ADEQUATE
DISTANCE TO PROVIDE FOR CLEARANCE
OF THE DRIVE ASSEMBLY.
NOTE 2:
VENTILATION DUCT ADAPTERS ARE
ADJUSTABLE FROM 73-1/2" TO 76".
NOTE 1:
THE MAXIMUM DOOR HEIGHT MAY BE
REDUCED BY THE ADDITION OF OPTIONAL
DOOR BRACKETS. MAXIMUM HEIGHTS OF
91", 89" & 87" ARE AVAILABLE.
NOTE 4:
ALL VERTICAL DIMENSIONS MAY
VARY DUE TO THE ADJUSTABLE
FEET.
66" RIGHT-TO-LEFT
*Applies to steam heated units
** Chemical sanitizing units only
*** Pre-wash cold water thermostat option only
E1 MAIN ELECTRICAL CONNECTION (1.375” DIA HOLE)
E2 BOOSTER HEATER ELECT. CONNECTION (1.375" DIA)
W1 MAIN INLET WATER CONNECTION (1/2 NPT-F)
W2 PRE-WASH INLET WATER CONN. (1/2 NPT-F)
W3*** PRE-WASH COLD WATER CONN. (1/2 NPT-F)
D1 DRAIN CONNECTION, WASH (1-1/2" NPT-F)
D2 DRAIN CONNECTION, PRE-WASH (1-1/2" NPT-F)
DET DETERGENT BULKHEAD ACCESS (.875" DIA HOLE)
SAN** SANITIZER INLET TO RINSE (1/8" NPT-F)
RA RINSE AID CONNECTION TO RINSE (1/8" NPT-F)
CP CONDUCTIVITY PROBE ACCESS (.875" DIA HOLE)
S* STEAM TO WASH TUB HEATING COIL (3/4" NPT-F)
C* CONDENSATE RETURN (3/4" NPT-F)
VI VENTILATION DUCT CONN. (LOAD END) 4" x 16" ID
V2 VENTILATION DUCT CONN. (UNLOAD END) 4" x 16" ID
66" MACHINE DIMENSIONS
SPECIFICATIONS
NOTE 4:
ALL DIMENSIONS FROM THE FLOOR
CAN BE INCREASED 1 3/4" USING THE
MACHINE'S ADJUSTABLE FEET.

Table of Contents

Related product manuals