EasyManua.ls Logo

Juniper ACX7348 - Clearance Requirements for Airflow and Hardware Maintenance of ACX7348 Routers

Juniper ACX7348
150 pages
Print Icon
To Next Page IconTo Next Page
To Next Page IconTo Next Page
To Previous Page IconTo Previous Page
To Previous Page IconTo Previous Page
Loading...
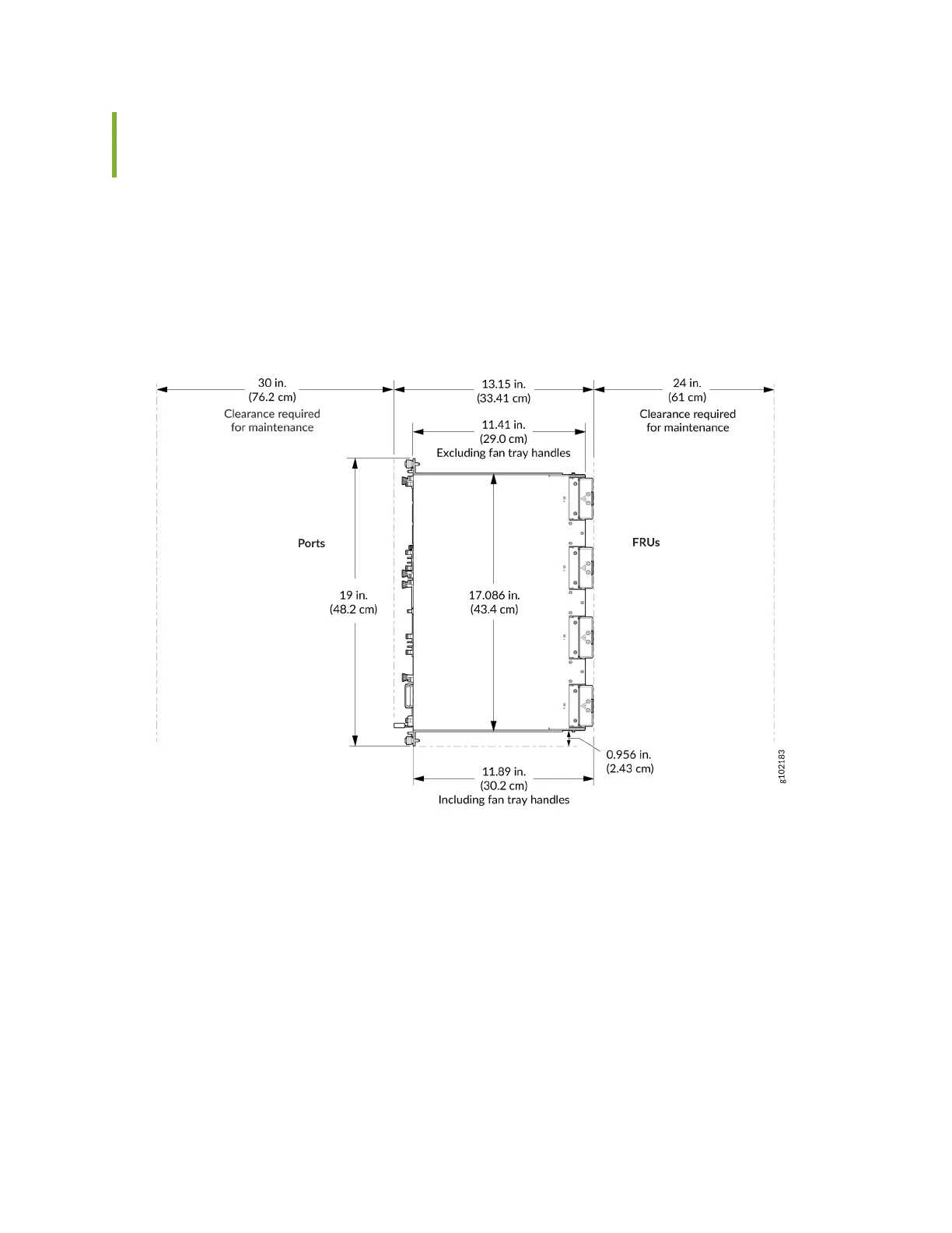
Clearance Requirements for Airow and Hardware Maintenance of
ACX7348 Routers
When planning the site for installing an ACX7348 router, you must allow sucient clearance around the
installed chassis. See Figure 21 on page 47.
Figure 21: Clearance Requirements for Hardware Maintenance of ACX7348 Routers
Ensure that your installaon of the ACX7348 router chassis meets the following requirements:
For the cooling system to funcon properly, the airow around the chassis must be unrestricted. See
"Airow" on page 19 for more informaon about the airow through the chassis.
If you are mounng an ACX7348 router in a rack or cabinet with other equipment, ensure that the
exhaust from other equipment does not blow into the intake vents of the chassis.
For service personnel to remove and install hardware components, and to accommodate the
interface and power cable bend radius, allow at least 24 in. (61 cm) of space both at the front and the
rear of the router.
47

Table of Contents

Related product manuals