EasyManua.ls Logo

Kollmorgen SERVOSTAR 620

Default Icon
98 pages
To Next Page IconTo Next Page
To Next Page IconTo Next Page
To Previous Page IconTo Previous Page
To Previous Page IconTo Previous Page
Loading...
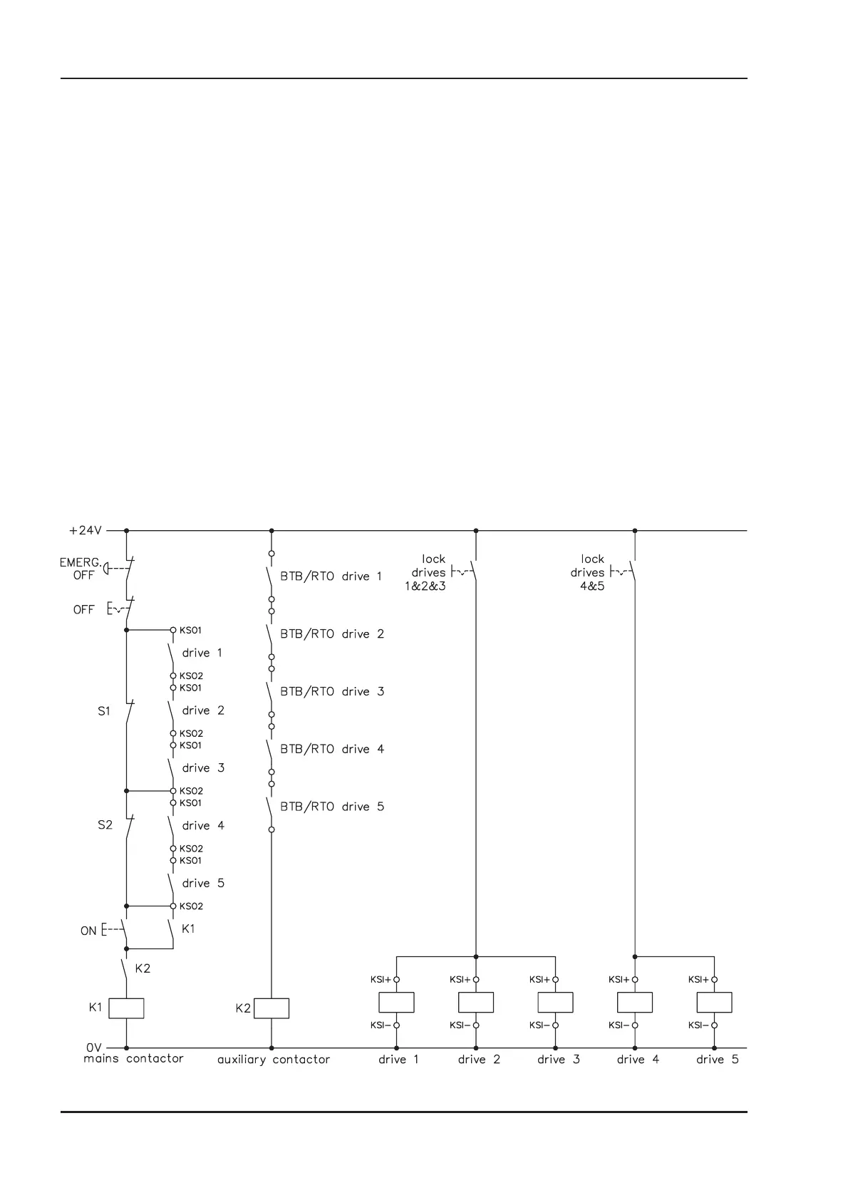
5.1.6 Application examples
5.1.6.1 Moving single axes or axis-groups in setting-up operation
In setting-up operation, people will frequently be within the danger zone of the machinery. Axes will
normally be moved under the control of permission switches. An additional switch-off of the unused
axes, by means of the restart lock, increases the safety margin and avoids the repeated switching
of main contactors or motor contactors.
5.1.6.2 Switching off grouped axes with separate working areas
Even when several SERVOSTAR 600 are operating off a common mains supply and DC-link, it is
possible to set up groups for separate working areas. These groups can then be switched off sepa
-
rately for personnel safety. For this purpose, we have provided you with a suggested circuit (mains
supply circuit and control circuit for 2 separate working groups which have interconnected DC-links
and a common mains supply voltage).
5.1.6.2.1 Control circuit
The suggested circuit fulfills safety category 1 (EN 954-1). You can fulfill safety category 3, if you
use a mains contactor with suited supervision.
66 SERVOSTAR
®
601...620 Installation Manual
Extensions / Accessories 03/04 Kollmorgen

Table of Contents

Other manuals for Kollmorgen SERVOSTAR 620

Related product manuals