EasyManua.ls Logo

Kollmorgen SERVOSTAR 620

Default Icon
98 pages
To Next Page IconTo Next Page
To Next Page IconTo Next Page
To Previous Page IconTo Previous Page
To Previous Page IconTo Previous Page
Loading...
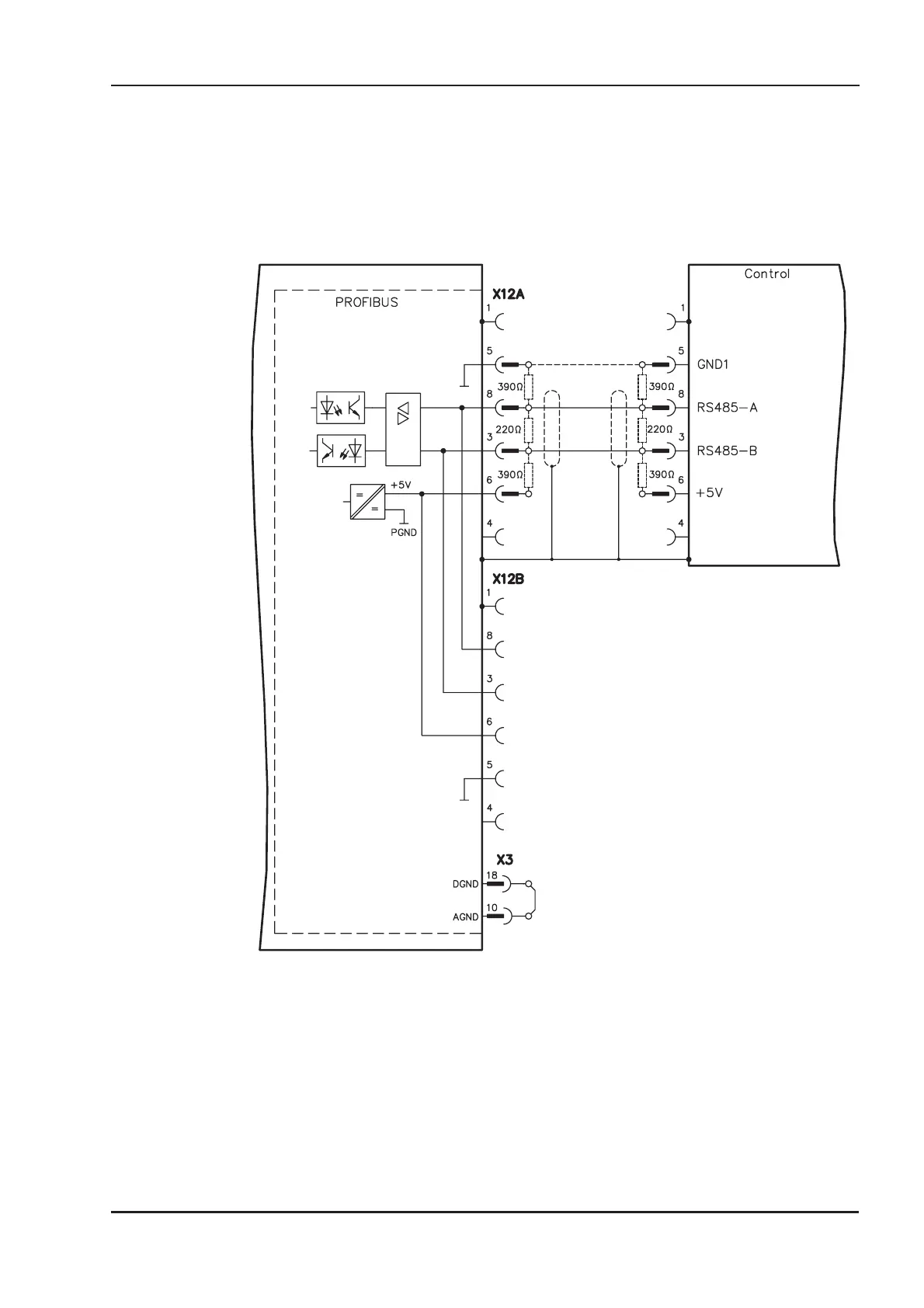
5.3.3 Connection technology
Cable selection, cable routing, shielding, bus connector, bus termination and transmission times are
all described in the “Installation guidelines for PROFIBUS-DP/”, Order No. 2.111, from PNO, the
PROFIBUS User Organization.
5.3.4 Connection diagram
AGND and DGND (connector X3) must be joined together !
SERVOSTAR
®
601...620 Installation Manual 73
Kollmorgen 03/04 Extensions / Accessories
SERVOSTAR 600

Table of Contents

Other manuals for Kollmorgen SERVOSTAR 620

Related product manuals