EasyManua.ls Logo

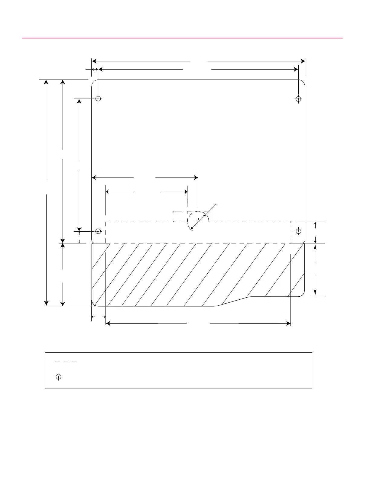
lancer TP30 - Counter Cutout

lancer TP30
48 pages
Print Icon
To Next Page IconTo Next Page
To Next Page IconTo Next Page
To Previous Page IconTo Previous Page
To Previous Page IconTo Previous Page
Loading...
47
Counter Cutout
30”
28 1/8”
15/16”
34”
23”
18 5/8”
1 5/8”
11”
1 1/2”
3“ DIAMETER OPTIONAL
3“
9“
26”
15”
11 1/2”
2“
FRONT OF DISPENSER
OPTIONAL HOLES FOR FASTENING DISPENSER TO COUNTER WITH SCREWS
CUT OUT DASHED AREA
BOLD COUNTER CUTOUT
DRIPTRAY

Related product manuals