EasyManua.ls Logo

Lenze 9325 - Deactivate Output; Output of Status Signals

Lenze 9325
524 pages
Print Icon
To Next Page IconTo Next Page
To Next Page IconTo Next Page
To Previous Page IconTo Previous Page
To Previous Page IconTo Previous Page
Loading...
Function block library
7-77
SHB9300CRV EN 2.0
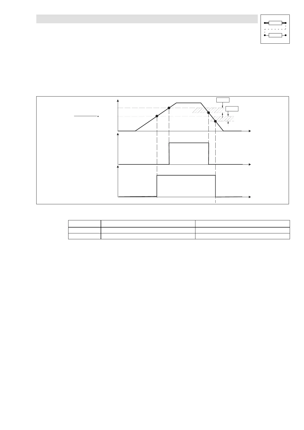
7.6.17.3 Output of status signals
The digital outputs CERR1-ERR and CERR1-WARN indicate if the actual limit values for contouring
errors and contouring error pre-warning are exceeded or not reached yet.
Enter a hysteresis under codes C1380/1 and C1380/2 to avoid constant inversion at the turning
point.
CERR1-PHI-IN
CERR1-LIM
I C E R R 1 - W F A C I
100 %
CERR1-LIM
CERR1-ERR
CERR1-W ARN
C 1381
C 1380
cerrerr
Fig. 7-50 Sig nals CERR1- ERR and CERR1-WARN
Code
Meaning Note
C1380/1 Hysteresis contouring error
C1380/2 Hysteresis warning
7.6.17.4 Deactivate output
The output of co nt o uring er rors and co nt o ur ing er ror war ning can b e deactiv at ed w it h
CERR1-DISAB LE = HIGH.
Show/Hide Bookmarks

Table of Contents

Related product manuals