EasyManua.ls Logo

Lenze i510 Series

Lenze i510 Series
487 pages
To Next Page IconTo Next Page
To Next Page IconTo Next Page
To Previous Page IconTo Previous Page
To Previous Page IconTo Previous Page
Loading...
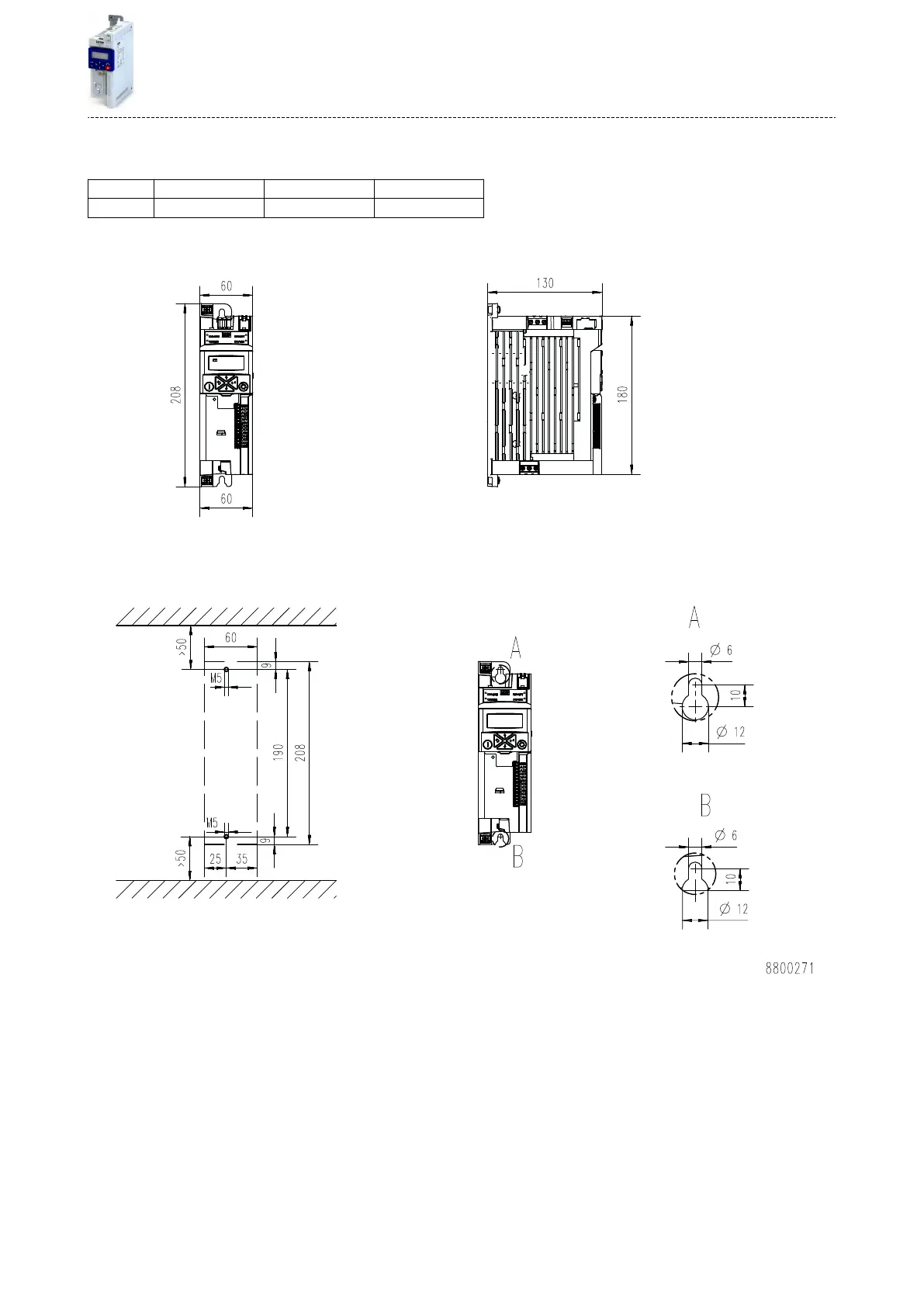
0.55 kW ... 0.75 kW
The dimensions in mm apply to:
0.55 kW I51AE155B I51AE155D I51AE155F
0.75 kW I51AE175B I51AE175D I51AE175F
Mechanical installaon
Dimensions
15

Table of Contents

Other manuals for Lenze i510 Series

Related product manuals