EasyManua.ls Logo

Mahr LINEAR 100 - Mesure Extérieure 50-100 Mm; Mesure Darbres

Mahr LINEAR 100
33 pages
Go to English
To Next Page IconTo Next Page
To Next Page IconTo Next Page
To Previous Page IconTo Previous Page
To Previous Page IconTo Previous Page
Loading...
Instructions d
utilisation
27
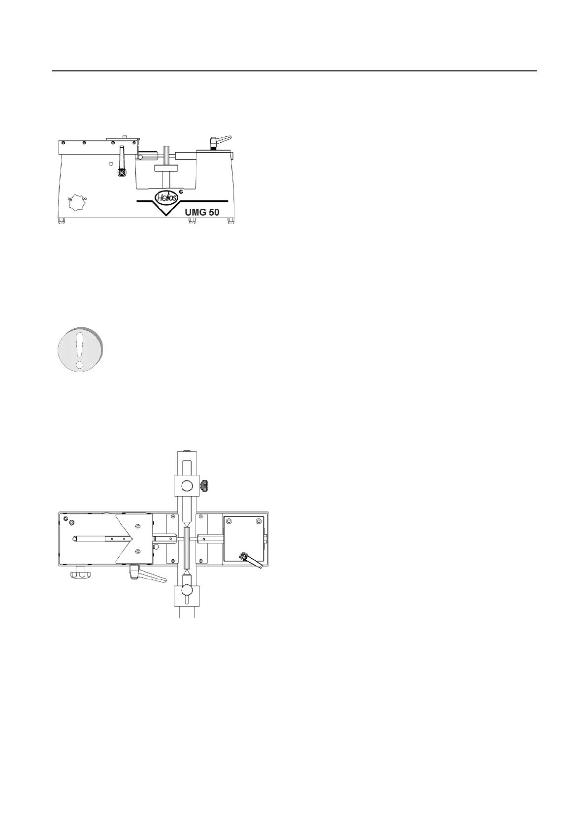
20.2.2 Mesure extérieure 50-100mm
1. A l
aide de la touche CHA, passer au canal 1.
2. Repousser le contre-fourreau jusque dans la
position souhaitée.
3. Mettre en place une cale étalon appropriée.
4. Rapprocher les faces de mesure.
5. Appuyer sur la touche MEN.
6. Appuyer sur la touche ENT.
7. Par l
intermédiaire du pavé numérique, entrer la
cote de l
élément de réglage dans la mémoire
Preset.
8. Valider par la touche ENT.
9. Appuyer sur la touche MEN.
10.Mettre en place l
éprouvette et lire la cote sur
l
afficheur.
L
étalon nag e des canaux dem eure m ême après que l
on soi t passé de la mesure
extérieu re à la m esure intérieure !
20.2.3 Mesure d
arbres
1. Rapprocher le fourreau de mesure et le contre-
fourreau.
2. Mettre à zéro à l
aide de la touche CLR.
3. Monter le support de pointe.
4. Désengager la pointe montée sur ressorts et
serrer l
éprouvette.
5. Positionner l
éprouvette contre le contrefourreau.
6. Mettre en place le fourreau de mesure.
7. Lire la valeur de mesure sur l
afficheur.

Table of Contents

Related product manuals