EasyManua.ls Logo

Manitowoc Grove GRT8100 - Page 151

Manitowoc Grove GRT8100
340 pages
Print Icon
To Next Page IconTo Next Page
To Next Page IconTo Next Page
To Previous Page IconTo Previous Page
To Previous Page IconTo Previous Page
Loading...
4-5
Published 3/26/2018, Control # 596-05
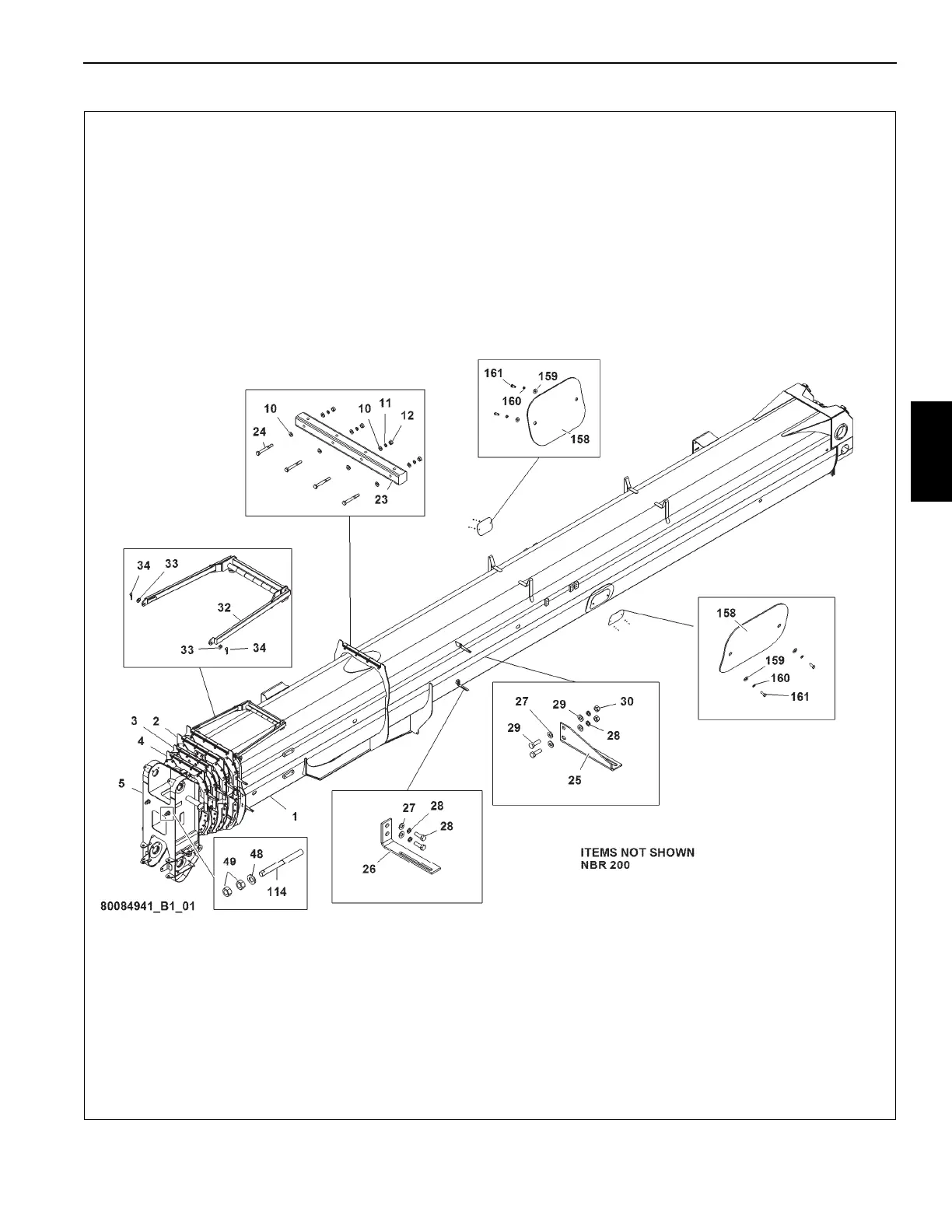
GRT8100 SERVICE MANUAL BOOM
4
GROVE
FIGURE 4-2

Table of Contents

Other manuals for Manitowoc Grove GRT8100

Related product manuals