EasyManua.ls Logo

marposs P1 - Securing the Electronic Unit

Default Icon
43 pages
Print Icon
To Next Page IconTo Next Page
To Next Page IconTo Next Page
To Previous Page IconTo Previous Page
To Previous Page IconTo Previous Page
Loading...
Instruction Manual
Instruction Manual
23
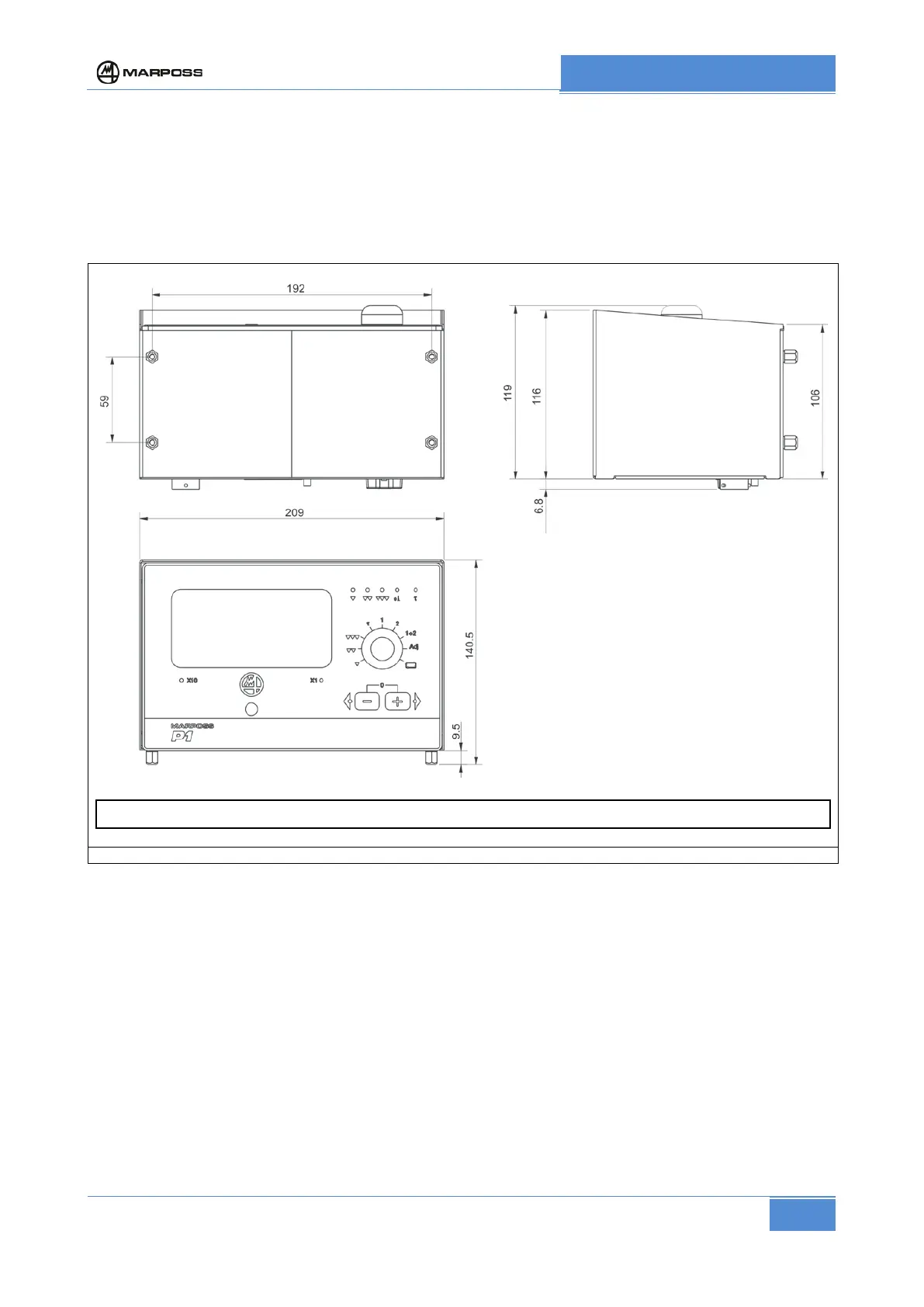
6.2
Fastening the electronic unit
6.2.1
Securing the unit to the Machine Tool
In the case of the P1 version with case, secure the gauge to the machine tool using the four internally
threaded feet (M4 thread).
The maximum rear dimensions, due to the measuring head connector, depend on the type of measuring head used.
Figure 3 Overall dimensions with casing and tilting stand

Table of Contents