EasyManua.ls Logo

Menvier Security TS700 - Appendices; Domestic Part-Set Application Example

Menvier Security TS700
32 pages
Print Icon
To Next Page IconTo Next Page
To Next Page IconTo Next Page
To Previous Page IconTo Previous Page
To Previous Page IconTo Previous Page
Loading...
Appendices
Domestic Part-Set Applicatio n Example
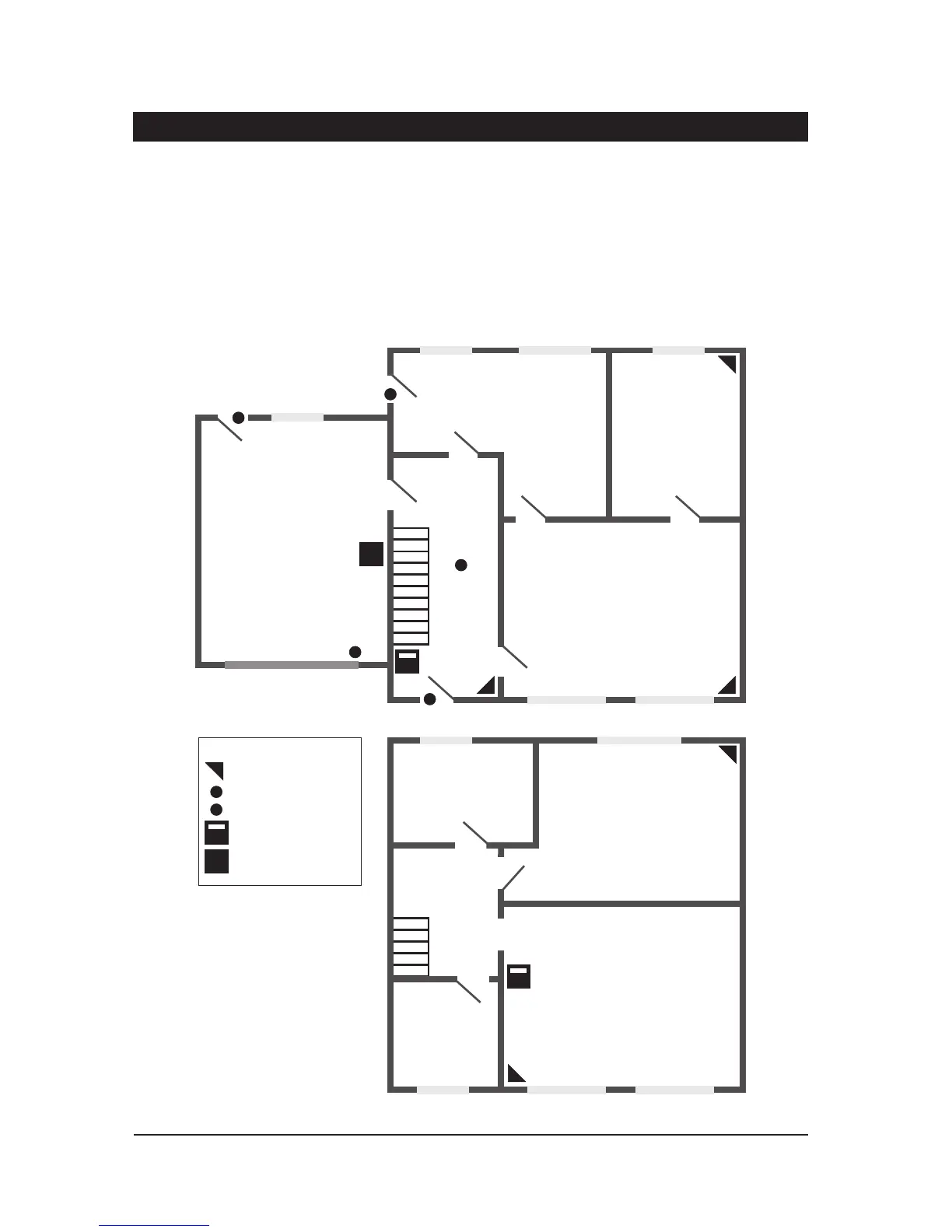
The TS700 cont rol panel can be configured so that only part of the sys tem is armed. The following
example illust rates how the TS700 alarm sys tem is configur ed so that it protectsdifferent areas of a
three bedr oom det ached house. Figure 11 shows the layout of the house and p osition of the
detection circuit s and remote key pad.
26
Appendices TS700 Instal lation Manual
P
P
P
P
P
RK
C
C
C
S
C
C
CP
CP
RK
Key:
10
9
8
7
6
2
1
3
5
4
Bedroom 1
Bedroom 2
Bathroom
Lan di ng
Bedroom 3
Lounge
Ga rage
Kitchen
D ining Room
Hall
Passive Infra-Red Detector
Magnetic Contact
Remote Keypad
Control Panel
RK
P
S
Smoke detector
Figure 11. A typical three bedroom house.

Related product manuals