EasyManua.ls Logo

Mercury 50

Mercury 50
599 pages
To Next Page IconTo Next Page
To Next Page IconTo Next Page
To Previous Page IconTo Previous Page
To Previous Page IconTo Previous Page
Loading...
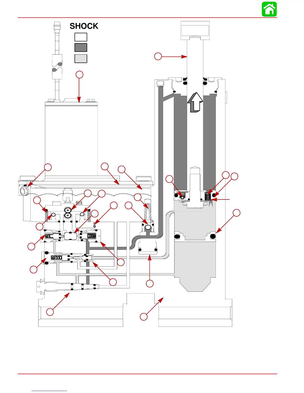
POWER TRIM
Page 5B-18 90-828631R3 MARCH 1999
Á
ÁÁ
SHOCK FUNCTION UP
Reservoir and Feed Oil
Oil Under Pressure
Return Oil
1550-1850 psi
a
b
c
d
e
f
g
h
i
j
k
l
m
n
o
p
q
r
s
t
u
v
w
w

Table of Contents

Other manuals for Mercury 50

Related product manuals