EasyManua.ls Logo

Mercury 50

Mercury 50
599 pages
To Next Page IconTo Next Page
To Next Page IconTo Next Page
To Previous Page IconTo Previous Page
To Previous Page IconTo Previous Page
Loading...
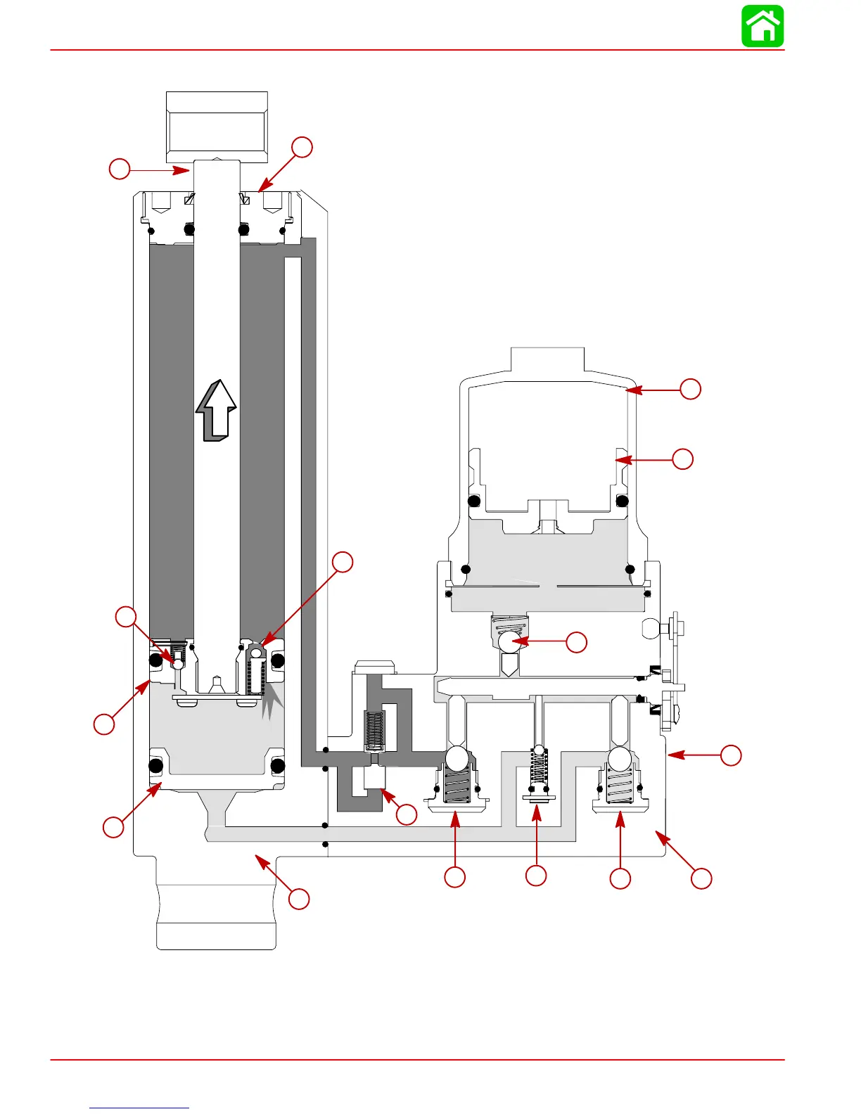
MANUAL TILT ASSIST
Page 5D-12 90-828631R3 MARCH 1999
Shock Function (Valves Closed)
Accumulator
Gas Pressure
400 psi
a
b
o
n
m
p
l
k
j
i
h
g
f
d
c
e

Table of Contents

Other manuals for Mercury 50

Related product manuals