EasyManua.ls Logo

Midland SPD-6 - Page 67

Midland SPD-6
300 pages
Go to English
To Next Page IconTo Next Page
To Next Page IconTo Next Page
To Previous Page IconTo Previous Page
To Previous Page IconTo Previous Page
Loading...
67
www.roadwidener.com
Model SPD-6
No. Qty. Description Part Number
1 1 Horn, 12 VDC (20/Pk) M18031
2 1 Back-Up Alarm M18100
Continued On Page 67
NOTES:
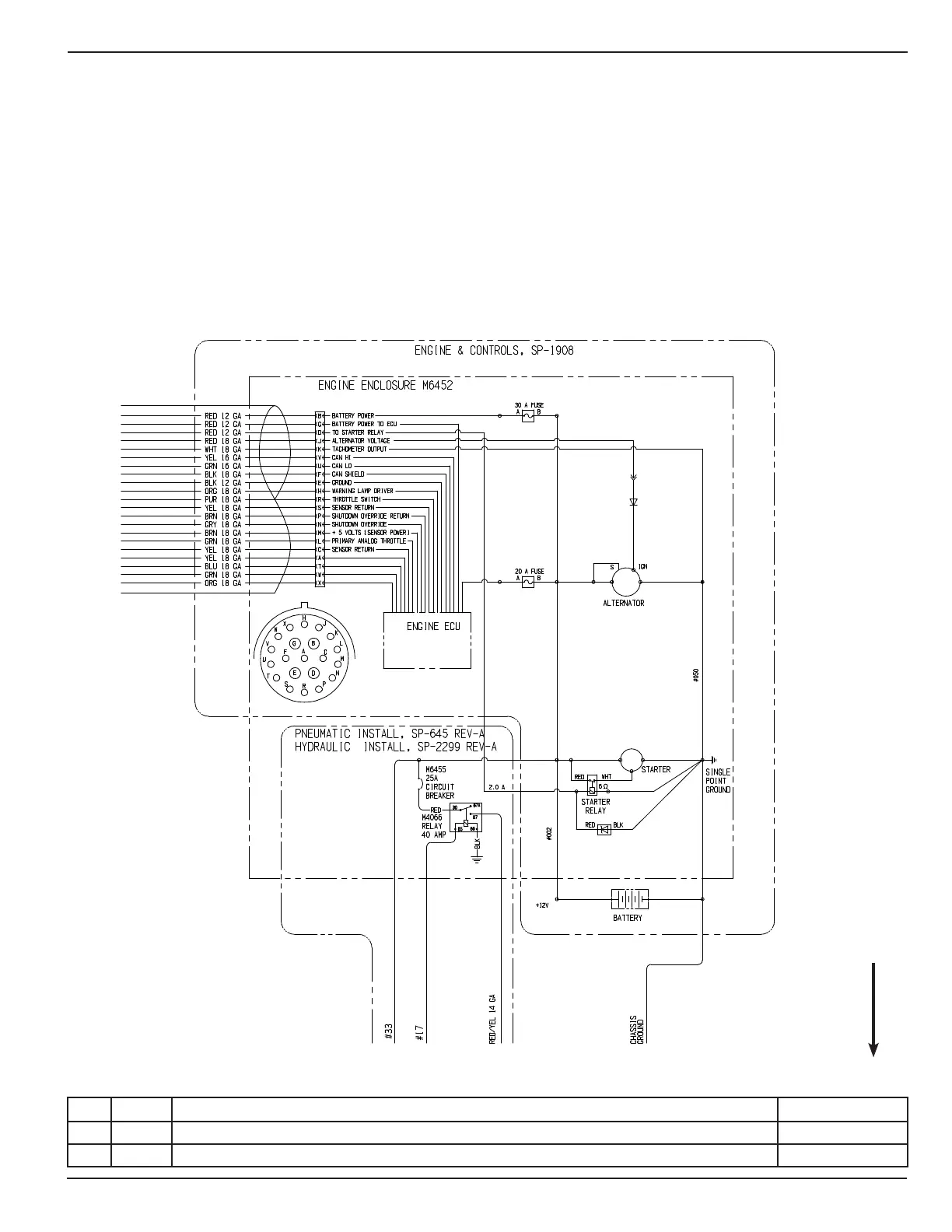
1. THIS SCHEMATIC IS USED ON S/N 2020 ON UP.
2. THE ENGINE WILL NOT START UNLESS THE CONVEYOR SWITCH IS OFF AND THE E-STOP SWITCH IS FULLY DOWN. THE E-STOP SWITCH WILL ENERGIZE THE
LATCHING RELAY’S RESET COIL.
3. THE TRAVEL CONTROLLER IS DE-ENERGIZED SO THE POSITION IS NOT CRITICAL TO STARTUP. AFTER STARTUP, THE TRAVEL CONTROLLER MUST BE
MOVED TO THE NEUTRAL POSITION FOR THE LIMIT SWITCH TO ENERGIZE THE LATCHING RELAY’S LATCHING COIL. THIS EFFORT WILL PROVIDE VOLTAGE TO
THE TRAVEL STOP HYDRAULIC VALVE.
4. THE TWO PRESSURE SWITCHES FOR THE BRAKE LIGHT ARE IN PARALLEL, ONE SWITCH EACH FOR THE FRONT AND REAR BRAKE PRESSURES. THE LIGHT
WILL ONLY GO OUT WHEN BOTH SWITCHES ARE OPEN.
5. CONVEYOR LEFT/RIGHT DISCHARGE PUMP SHOCK PROTECTION: TO PREVENT PUMP SHOCK & FAILURE DUE TO SWITCH OVER WHEN RUNNING, A SAFETY
LOCKOUT IS INCLUDED IN THE ELECTRIC LOGIC. SWITCHING TO THE OPPOSITE DISCHARGE USING M6426 SWITCH WILL TEMPORARILY INTERRUPT VOLTAGE
TO M4173 RELAY WHICH WILL TURN OFF THE CONVEYOR PUMP (TERM 5-3). SWITCHING M6426 CONVEYOR “ON/OFF” SWITCH FROM “ON” TO “OFF” WILL RESET
M4173 RELAY WHICH WILL BE “HELD” BY M6426 L/R DISCHARGE SWITCH. THEN SWITCHING M6426 CONVEYOR “ON/OFF” SWITCH BACK TO “ON” WILL ALLOW
THE PUMP TO STROKE (TERM 5-3).

Table of Contents