EasyManua.ls Logo

Mitsubishi Electric MELSEC iQ-R-R00CPU - Page 558

Mitsubishi Electric MELSEC iQ-R-R00CPU
1028 pages
To Next Page IconTo Next Page
To Next Page IconTo Next Page
To Previous Page IconTo Previous Page
To Previous Page IconTo Previous Page
Loading...
556
34 SAFETY DEVICES, SAFETY LABELS, AND CONSTANTS
34.1 Safety Devices
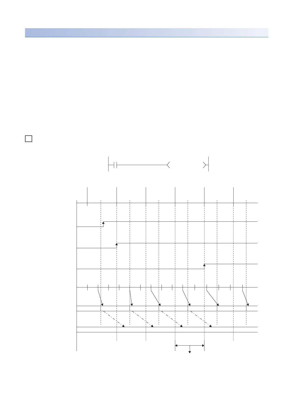
Safety timer (SA\T)/safety retentive timer (SA\ST)
This device starts measurement when the safety timer coil is turned on. When the current value reaches a setting value, time
is up and the contact is turned on. This safety timer is an up-timing type device and therefore the current value matches a
setting value when the safety timer time is up. Operations other than the following are the same as those for the timer. (
Page 338 Timer)
Safety timer types
There is a safety timer (SA\T) that retains the current value in 16-bit units. In addition, there is a safety retentive timer (SA\ST)
that retains the current value even if the coil turns off.
Safety timer accuracy
The current value is measured when starting safety cycle processing. The value for the elapsed time since the previous safety
cycle processing was started until the present is added to the current value when the OUT SA\T instruction is executed. If
the safety timer coil is off at the execution of the OUT SA\T instruction, the current value is not updated. The maximum
response accuracy of the timer is the "elapsed time since previous safety cycle processing was started until the present +
timer limit setting".
Ex.
Timer limit setting = 10ms, SA\T0 setting value = 8
: Safety cycle processing start
(1) Time accuracy - (Elapsed time since the previous safety cycle processing was started until the present + Timer limit setting) to (Elapsed time since the
previous safety cycle processing was started until the present)
(2) Sets the coefficient when starting safety cycle processing.
HK8
ON
ON
ON
OFF
OFF
OFF
12
2
0+2=2 2+3=5 5+2=7
(1)
7+3=10
22
12 123
333
33111222

[Ladder example]
SA\X0
SA\T0
OUT SA\T0 OUT SA\T0 OUT SA\T0 OUT SA\T0 OUT SA\T0 OUT SA\T0
[Current value update timing]
Safety program
SA\X0 of the CPU module
SA\T0 (coil)
SA\T0 (contact)
Measurement (10ms)
(Measured with the timer limit
setting value)
Count when the safety cycle
processing starts
SA\T0 (current value)

Table of Contents

Related product manuals