EasyManua.ls Logo

Nibe FIGHTER 1140 - Option 4 - FIGHTER 1140 docked to another heat source (fixed condensing)

Nibe FIGHTER 1140
76 pages
Print Icon
To Next Page IconTo Next Page
To Next Page IconTo Next Page
To Previous Page IconTo Previous Page
To Previous Page IconTo Previous Page
Loading...
NK
VVG
BK / JK
SF
AV
SÄV
EXP
VXV
AV
AV
SF AV
FG
AV
Oljepanna
UG
PG
SV
VVB / ACK
AB
BA
SÄV
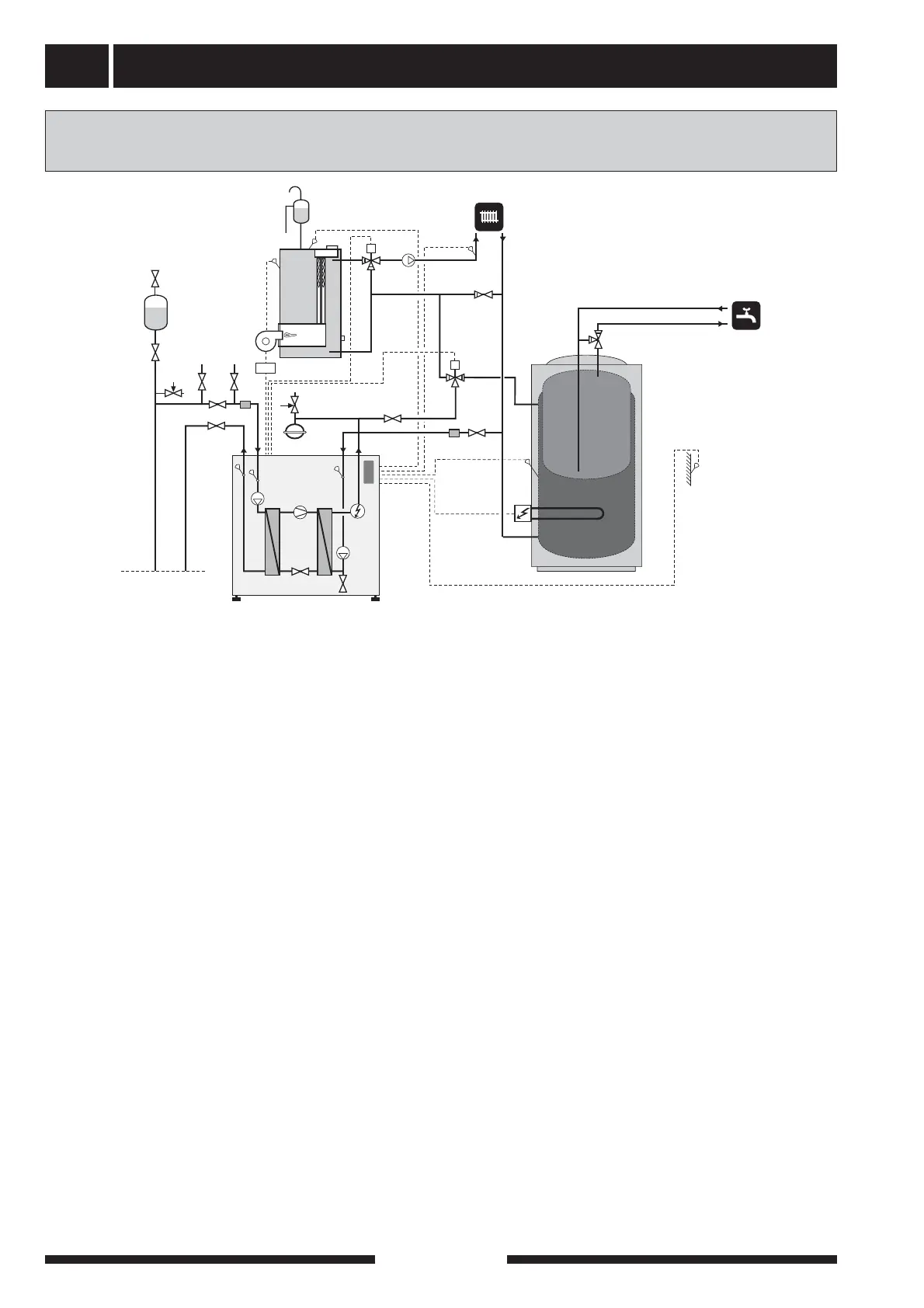
Docking28
FIGHTER 1140
Principle of operation
FIGHTER 1140 prioritises charging the hot water
heater (VVB/ACK). When the preset hot water tem-
perature is reached, the shuttle valve switches to
heating. If the heat pump cannot manage to keep the
correct flow temperature, the oil-fired boiler starts and
the shunt valve (SV) begins to open from the boiler.
The flow line sensor (FG) should be placed on the
main pipe to the radiators.
This alternative requires the accessory VST 11.
Menu option
This option requires the following selections to be
made in:
Select “Service” in menu 8.1.1.
Menu 9.2.13.1 “Docking type” select alt. ”3”.
Menu 9.2.13.4 “Boiler temp/act mixv”. The tempera-
ture when the shunt shall start to work (open) is
selected here.
When there is also a hot water heater the follow selec-
tions should also be made:
Menu 9.2.13.3 “Hot water”, is set to “On”.
NOTE! These selections are confirmed by switching
the heat pump off and on.
Sensor connection
In this connection option the edge board connector for
the flow line sensor (FG) and return sensor (RG)
should be disconnected.
The flow line sensor (FG) should be placed on the
main pipe and connected to the screw terminals
X4:15–16.
The existing return sensor (RG) is disconnected from
the edge board connector and is connected to
X4:13–14.
Option 3 - FIGHTER 1140 docked to an oil-fired boiler
(floating condensing)
Oil boiler

Table of Contents

Related product manuals