EasyManua.ls Logo

Omron CK3W-GC 00 Series - Page 156

Omron CK3W-GC 00 Series
288 pages
To Next Page IconTo Next Page
To Next Page IconTo Next Page
To Previous Page IconTo Previous Page
To Previous Page IconTo Previous Page
Loading...
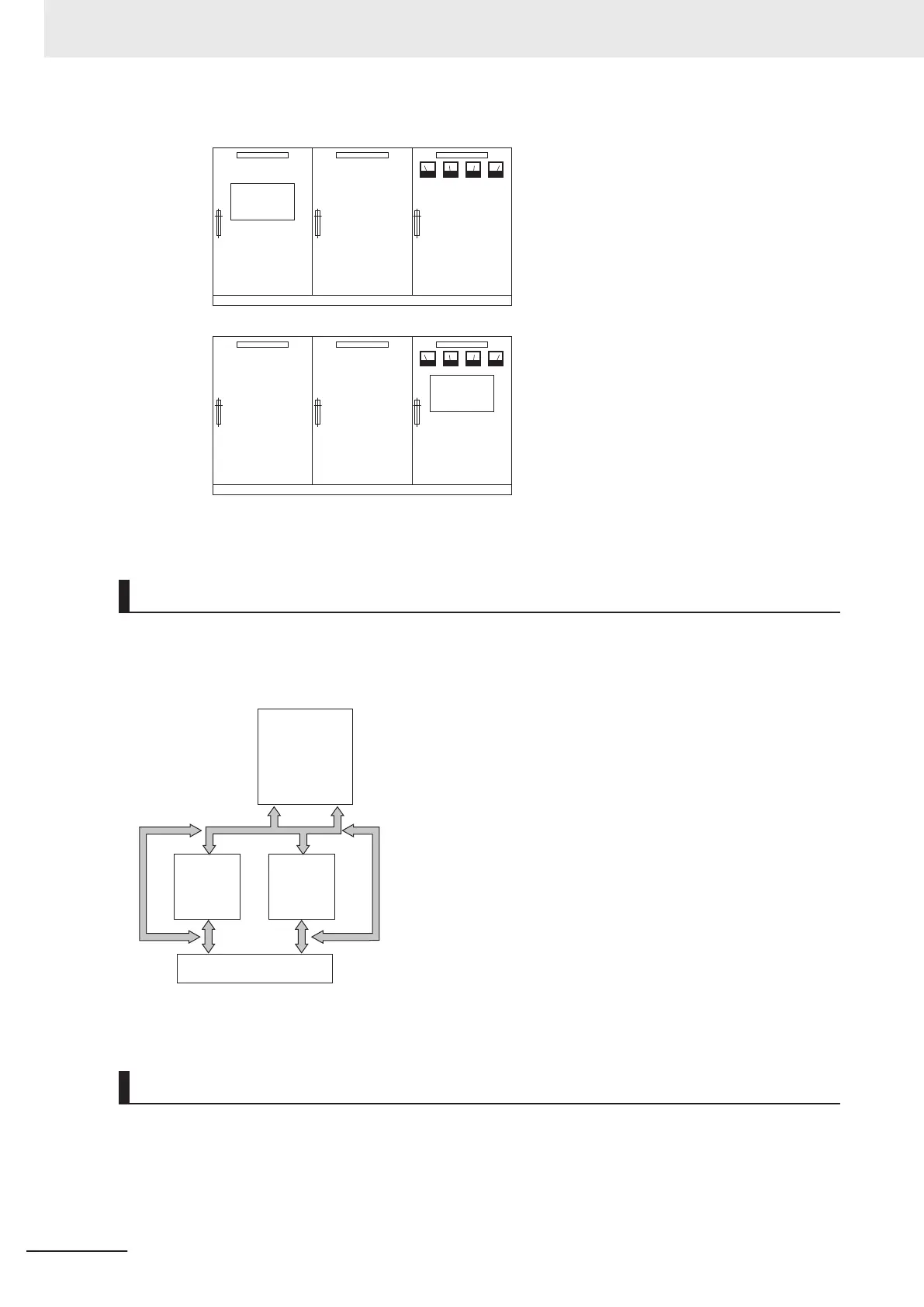
Example of Recommended Equipment Arrangement
Control panel Control panel High-voltage
power panel
Examples of Equipment Arrangement in Panel with High-voltage Devices
Example of Poor Equipment Arrangement
Control panel Control panel High-voltage
power panel
Controller
Controller
O
K
NG
Arrangement of Controller and Units
The coils and contacts in electromagnetic contacts and relays in an external circuit are sources of
noise. Do not install them close to the Controller. Locate them at least 100 mm away from the Control-
ler
.
Controller
DC I/O
device
AC I/O
device
Terminal block
Example of Arrangement in Panel
Wire Layout for the Power Supply System
Observe the following points when wiring the power supply system.
Separate the Controller power supply from the I/O device power supply and install a noise filter near
the Controller power supply feed section.
4 Installation
4-22
CK3M-series Programmable Multi-Axis Controller User's Manual Hardware (O036)

Table of Contents

Related product manuals