EasyManua.ls Logo

Panasonic SA-MAX5000PN - Audio

Panasonic SA-MAX5000PN
85 pages
Print Icon
To Next Page IconTo Next Page
To Next Page IconTo Next Page
To Previous Page IconTo Previous Page
To Previous Page IconTo Previous Page
Loading...
35
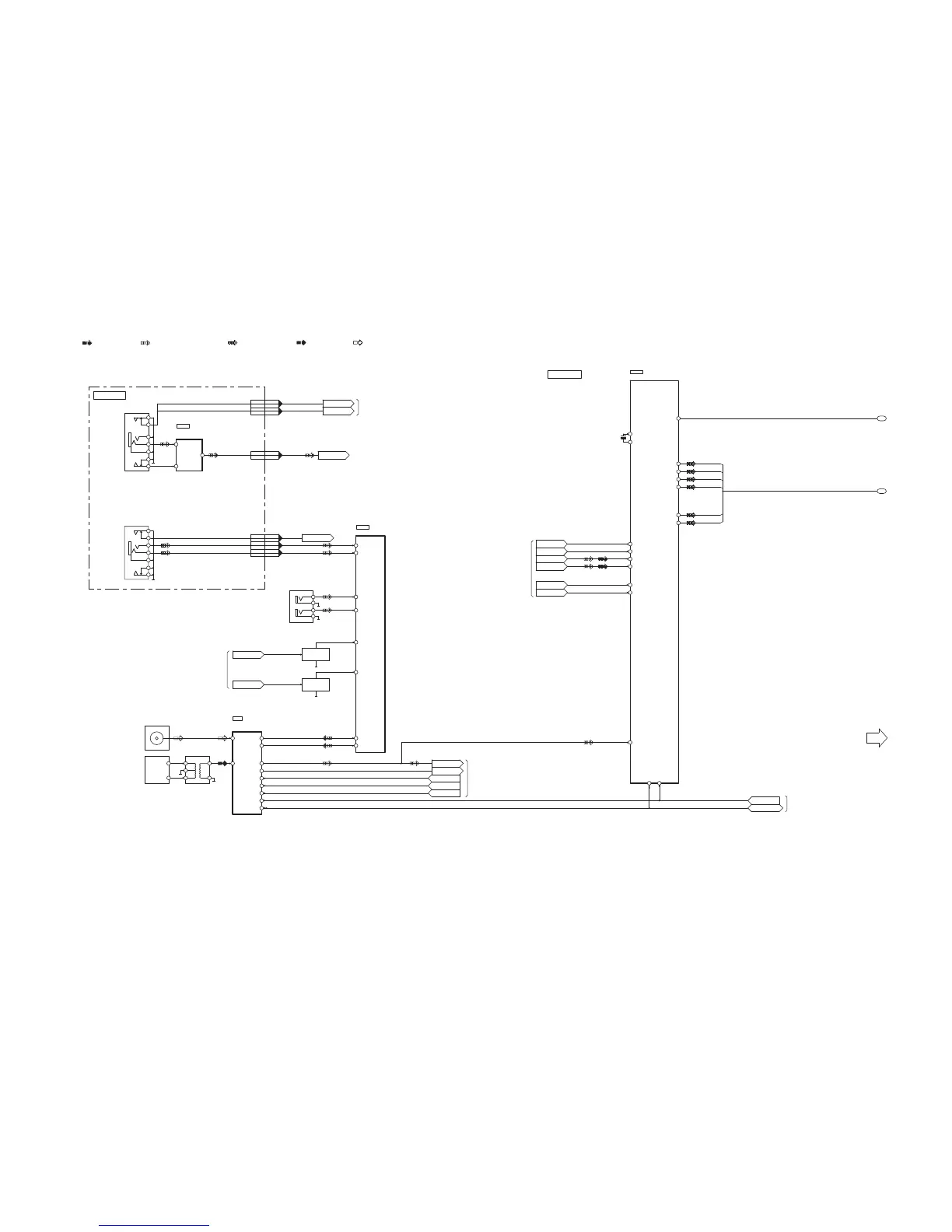
10.2. Audio
SA-MAX5000PN/PS AUDIO (1/2) BLOCK DIAGRAM
TO AUDIO
BLOCK (2/2)
42 XO
41 XI
X4001
7
8
5
DSP
IC4001
MAIN P.C.B.
MIC P.C.B.
SELECTOR
IC6100
A10
ANALOG SEL1
ANALOG SEL1
QR6101
SWITCH
B9
ANALOG SEL2
ANALOG SEL2
TUN INT
TUN WCK
QR6100
SWITCH
JK6002
Y01
X012
AUX IN 1
2
1
4
3
FM ANT
JK51
AM/FM RADIO
RECEIVER
IC52
2 FMI
SCLK
GPIO2 18
DOUT 13
DFS 14
LIN 15
L-CH
R-CH
TUN SDO
TUN INT
TUN RST
TUN WCK
G TUN BCK
I2C SCL
I2C SDA
RIN 16
DCLK 17
SDIO
RST
JK52
L52
4
6
3
1
2
4 AMI2
1
AM ANT
4
SDA
5
SCL
FROM/TO
SYSTEM CONTROL
FROM/TO
SYSTEM CONTROL
FROM
SYSTEM CONTROL
R
L
AUX IN 2
JK1402
3
2
1
6
7
5
4
14 X1
5Y1
3 COM Y
13 COM X
77
CN1401 P1803
MIC DET2
MIC DET2
66
CN1401 P1803
MIC DET1
MIC DET1
88
CN1401 P1803
MIC IN
MIC IN
11
CN1401 P1803
MPORT DETMPORT DET
44
CN1401 P1803
MPORT IN RMPORT IN R
22
CN1401 P1803
MPORT IN LMPORT IN L
TO
SYSTEM CONTROL
TO
SYSTEM CONTROL
MIC DET2
MIC DET1
MIC IN
TO
SYSTEM CONTROL
MPORT DET
I2C SCL
MIC
CIRCUIT
MIC VOLUME
VR1400
MIC
JK1403
3
2
1
7
8
5
4
MIC
AMPLIFIER
IC1401
I2C SDA
TUN INT
TUN WCK
TUN BCK
TUN BCK
TUN SDO
I2C SCL
TUN RST
TUN SDO
TUN RST
I2C SDA
P1
PWM1B
PWM1A
PWM2B
PWM2A
PWM4B
PWM4A
FL- HI LO
FL+ HI LO
FR- HI LO
FR+ HI LO
SW-
SW+
27
28
29
30
33
34
24VALID
1
DAMP RST
9
8 SDIN1
10 BCK
LRCK
FROM
SYSTEM CONTROL
DSP BCK
DSP WCK
DSP SDO0
3 SMUTE
DSP MUTE
2 RST N
DSP RESET
6 SDIN3
DSP SDO1
7 SDIN2
: CD SIGNAL LINE
: TUNER/AUX/MIC SIGNAL LINE
: OUTPUT SIGNAL LINE
: FM SIGNAL LINE: AM SIGNAL LINE

Table of Contents

Related product manuals