EasyManua.ls Logo

Panasonic TH-50PH9UK - DA-Board (5 of 6) Schematic Diagram

Panasonic TH-50PH9UK
159 pages
Print Icon
To Next Page IconTo Next Page
To Next Page IconTo Next Page
To Previous Page IconTo Previous Page
To Previous Page IconTo Previous Page
Loading...
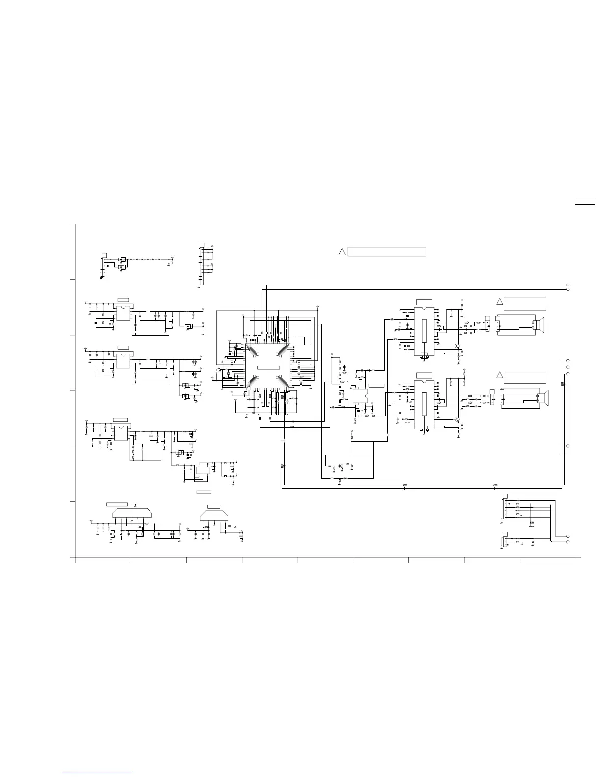
14.15. J-Board (1 of 5) and H3-Board Schematic Diagram
+
+
Thermal Pad
+
+
G
G
+
+
Thermal Pad
+
+
G
G
+
+
+
G
G
+
+
+
+
+
+
+
+
NP
+
G
G
+
G
G
+
NP
+
+
+
+
+
+
G
G
+
+
LED_R
REMOCON
LED_G
KEY_SW
KEY_DET
A_1.8V
C855
0.01u
50V
C2383
10V
100u
L8106
J0JHC0000078
C839
10u
6.3V
R2399
22
IC803
C0DBAMH00013
1
VIN
2
SW
3
FB
4
INV
5
EN
6
RT
7
GND
8
VIN
R2392
10k
C8112
16V
0.1u
C8111
16V
0.1u
C835
16V
47u
C1AB00002534
IC2302
1
HP_IN
2
HP_RippleFilter
3
HP_Standby
4
IN
5
IN_VREF
6
PRE_GND
7
ON_TIME
8
DIAGNOSIS
_OUT
9
NC
10
AMP
_Standby
11
AMP_
RippleFileter
12
Tj_Monitor
13
phase comp. 2
14
phase comp. 1
15
SW_OUT
16
SW_E
17
SW_B
18
SW_GND
19
NC
20
Vcc
21
PRE_Vcc
22
OUT+
23
OUT-
24
NC
25
POWER
_GND
26
NC
27
NC
28
HP_OUT
C2361
50V
1000p
A_3.3V
C2396
25V
0.1u
C812
25V
470u
R821
24.3k
C2397
10V
100u
R2358
2.2
C2395
25V
0.1u
C2365
50V 0.1u
D_1.8V
D_3.3V
SLOT3.3V
C865
0.01u
50V
C841
10u
6.3V
R2424
0
A_3.3V
D808
B0JCPE000004
D_3.3V
C856
0.01u
50V
A_5V
C864
25V
0.1u
C8113
16V
0.1u
R814
10.5k
R2414
1.2k
L8103
J0JHC0000078
R831
33k
R2363
0
D8184
MAZ80560ML
R2387
0
C2382
25V
0.1u
C2369
50V
0.1u
15V
C2351
2.2u
16V
F1J1E1040022
FL3001
1
2
3
A_1.8V
R822
10.5k
D809
B0JCPE000004
R2362
10k
C823
50V
47p
D_1.8V
C2376
50V
15p
C807
2.2u
25V
R2391
10k
Q2331
B1BBCF000028
C2378
25V
0.1u
SOUND12V
C2386
1u
50V
C2354
35V
47u
C2402
25V
0.1u
C2390
50V 10u
R2357
2.2
C0CBCAC00275
IC804
1
VDD
2
GND
3
CE
5
VOUT
4
NC
R2356 2.2
L812
G1C470M00012
R2409
0
C867
25V
0.1u
C2404
50V
0.01u
SOUND12V
R2396
10k
C845
10u
25V
C825
16V
1u
C837
10u
6.3V
C832
25V
0.1u
C1AB00002534
IC2301
1
HP_IN
2
HP_RippleFilter
3
HP_Standby
4
IN
5
IN_VREF
6
PRE_GND
7
ON_TIME
8
DIAGNOSIS
_OUT
9
NC
10
AMP
_Standby
11
AMP_
RippleFileter
12
Tj_Monitor
13
phase comp. 2
14
phase comp. 1
15
SW_OUT
16
SW_E
17
SW_B
18
SW_GND
19
NC
20
Vcc
21
PRE_Vcc
22
OUT+
23
OUT-
24
NC
25
POWER
_GND
26
NC
27
NC
28
HP_OUT
C831
47u
16V
C2350
2.2u
16V
C2357
50V
1000p
C2408
6.3V
10u
SLOT9V
C824
50V
0.01u
C2370
50V
10u
R819
68k
IC802
C0DBAMH00013
1
VIN
2
SW
3
FB
4
INV
5
EN
6
RT
7
GND
8
VIN
L803
G1C220MA0167
R2407
10k
R832
8.2k
R2393 22
R826
8.2k
R2384
47k
C2405
6.3V
2.2u
R805
84.5k
F1J1E1040022
FL3004
1
2
3
L801
100u
R813
42.2k
R2365
0
12V
C2398
25V
0.1u
C2355
35V
47u
L8102
J0JHC0000078
C816
25V
0.1u
D805
B0JCPE000004
C2385
10V
100u
C8100
16V
47u
C2360
50V
1000p
C2387
1u
50V
L8104
J0JHC0000078
J2
1
2
3
4
5
6
C833
50V
0.01u
L8108
J0JHC0000078
F1J1E1040022
FL3006
1
2
3
D2301
B0JCME000037
L8101
J0JHC0000078
C827
25V
2.2u
15V
C2399
25V
0.1u
R827
8.2k
R840
3.3k
R818
33k
L807
J0JHC0000078
D8181
MAZ80560ML
R811
68k
C0DBAMH00027
IC805
1
VIN
2
SW
3
RT
4
GND
5
FB
8
GND
6
INV
7
EN/SYNC
C8101
50V
0.01u
R838
33
SOUND15V
C2356
50V
1000p
R2386
100k
R2421
27k
R2411
0
C804
50V
4700p
C821
16V
470u
R2404
10k
C2409
50V
180p
R2383
4.7k
L802
G1C101MA0167
C2381
25V
0.1u
C2391
25V
0.1u
C2366
25V
2.2u
C808
25V
0.1u
C848
16V
2.2u
C809
16V
2.2u
R835
6.8k
C828
25V
0.1u
D804
B0JCPE000004
C858
25V
470u
D802
B0JCME000037
R2389
10k
C8120
25V
470u
15V
C2412
25V
0.1u
C2392
1u
16V
C811
16V
470u
C8116
50V
0.01u
R2368
56
C806
25V
0.1u
C2410
50V
180p
D806
B0JCPE000004
C8121
25V
2.2u
R804
82k
C2407
6.3V
10u
R2394
10k
C2411
10u
25V
C8107
16V
470u
R2412
1.2k
L8105
J0JHC0000078
R2361
10k
R2388
0
C1BB00001006
IC2303
1
PLLPWRR
2
PLLGNDR
3
PLLAVDD
4
PLLAVSS
5
PLLDVDD
6
PLLDVSS
7
TEST2
8
TEST3
9
DVSS4
10
DVDD4
11
XVSS
12
XOUT
13
XIN
14
XVDD
15
CVDD4
16
CVSS4
17
TEST0
18
TEST1
19
TEST4
20
TEST5
21
BVSS1
22
BVDD1
23
AVSS4
24
AVDD4
25
AVDD3
26
AVSS3
27
AOUT1
28
EVRINL
29
DAOUTL
30
DAOUTR
31
EVRINR
32
AOUT2
33
AVSS2
34
AVDD2
35
VREF2
36
VREF1
37
INL
38
INR
39
AVSS1
40
AVDD1
41
TEST6
42
XSEL0
43
XSEL1
44
XSEL2
45
CVSS1
46
CVDD1
47
LRCKI
48
BCKI
49
DATAI
50
SCKI
51
DVSS1
52
DVDD1
53
SCK0
54
TEST7
55
DATAO 2
56
DATAO 1
57
DATAO 0
58
BCKO
59
LRCKO
60
CVSS2
61
CVDD2
62
XPDESC
63
PDEN
64
DVSS2
65
DVDD2
66
PWDB
67
RSTB
68
INTB
69
MCUIFSEL
70
CE
71
SCL/CL
72
I2CBUSY/DI
73
SDA/DO
74
DVSS3
75
DVDD3
76
MRREQ
77
GPFLAG
78
EMPF
79
CVSS3
80
CVDD3
C818
25V
0.1u
C844
16V
2.2u
R829
1k
C843
10u
25V
C829
10u
25V
D807
B0JCPE000004
C863
25V
2.2u
R2354
10k
R2355
2.2
C8114
50V
0.01u
C861
50V
4700p
C0DBEJG00001
IC8100
1
CTL
2
Vcc
3
GND
4
OUT
5
C
R812
68k
C2394
50V 10u
C2371
50V
10u
FAN5V
R2397
5.1k
R834
75k
Q2372
2SD0601A0L
C2379
25V 0.1u
R2408
0
R802
33k
R2413
0
R806
10.5k
J15
1
2
3
C2403
25V
0.1u
C8115
16V
47u
R810
33k
LAN15V
C2364
50V
0.1u
D810
B0JCPE000004
D803
B0JCME000037
A_5V
R837
180k
1%
R803
68k
R2420
15k
R2405
10k
C868
16V
2.2u
R825
8.2k
C2358
2.2u
35V
J8
1
2
3
D2303
B0JCME000037
R2416
0
C802
25V
470u
D2302
B0JCME000037
F1J1E1040022
FL3007
1
2
3
C2406
6.3V
2.2u
R828
0
R2395
10k
C2401
25V
0.1u
C2362
25V
470u
R2410
0
9V_2
Q2300
B1BBCF000028
F1J1E1040022
FL3008
1
2
3
R2406
10k
R2359
2.2
X2301
H0J184500026
C857
0.01u
50V
R2352
10k
J10
1
2
3
4
5
6
C840
16V
2.2u
C2413
25V
0.1u
L3140
J0JHC0000078
L2330
220u
R2423
15k
C859
16V
1u
C838
16V
2.2u
C2393
1u
16V
C817
25V
2.2u
R2353
10k
C869
16V
2.2u
15V
C2389
10V
100u
R2422
27k
L805
J0JHC0000078
C846
16V
2.2u
C2367
25V
2.2u
R830
8.45k
L808
J0JHC0000078
L810
J0JHC0000078
C805
16V
1u
5V_M
R2390
10k
C2420
25V
0.1u
C2359
2.2u
35V
R2351
10k
C2353
50V
10u
C2374
25V
0.1u
9V_2
C2400
25V
0.1u
IC801
C0DBAMH00013
1
VIN
2
SW
3
FB
4
INV
5
EN
6
RT
7
GND
8
VIN
C2377
50V
15p
C2363
25V
470u
R2360 2.2
L2331
220u
C2373
25V
0.1u
L809
J0JHC0000078
C2352
50V
10u
D8185
MAZ80560ML
C819
16V
2.2u
D801
B0JCPD000026
C8106
16V
47u
C866
25V
0.1u
J7
1
2
3
C2388
25V
0.1u
L8107
J0JHC0000078
R2419
10k
C2368
50V
0.1u
R836
68k
C814
50V
4700p
L811
J0JHC0000078
R820
33k
R2418
10k
R2425
0
R839
680
C860
16V
470u
R2415
1.2k
SLOT5V
R2367
56
C2375
25V
0.1u
C847
10u
6.3V
R2400 22
C815
16V
1u
C822
25V
470u
SOUND12V
L804
J0JHC0000078
D_3.3V
C2380
25V
0.1u
A_3.3V
C0ABBA000168
IC2305
1
2
3
45
6
7
8
C3146
16V
2.2u
F1J1E1040022
FL3000
1
2
3
R2417
1.2k
C834
16V
47u
C2384
25V
0.1u
15V
J4
1
2
3
4
5
6
7
8
9
10
11
SOUND15V
C801
35V
220u
H37
1
2
3
JK8500
K4BC02B00013
H37
1
2
3
JK8500
K4BC02B00013
AOUT
AIN-
AIN+
GND
VCC
BOUT
BIN-
BIN+
#
M
M
#
M
#
M
LAN15V
GND
GND
GND
AVR 9V
-L OUT
+R OUT
+L OUT
-R OUT
OUT-L
OUT-R
KEY-SW
LED_G
GND
REMOCON
LED_R
OPT
STB3.3V
GND
LAN15V
NC
NC
AVR 5V
AVR 3.3V
AVR 1.8V
AVR 12V
10W MONO
SOUND CONTROL
!
3
5
6
1
4
2
7
8
7425831
E
96
C
B
F
D
A
EQUALIZER
BTL AMP R
10W MONO
BTL AMP L
(V2)
V1-BOARD
TO
(V15)
V2-BOARD
TO
(P10)
P-BOARD
TO
GND
15V
GND
15V
GND
15V
P-BOARD
15V
15V
GND
TO
(P5)
15V
GND
AVR SOUND+12V
!
SPEAKER
R
SPEAKER
L
J-BOARD TNPA3896S (1/5)
H3-BOARD
TXAUW01ZMTU
0
0
0
0
15.0
0
15.0
15.0
15.0
15.0
15.0
0
15.0
0
0
0
15.0
0
0.8
4.5
3.3
0
0
0
0
3.2
1.7
1.7
1.7
1.7
TH-50PH9UK
J-Board (1 of 5) and H3-Board Schematic Diagram
TH-50PH9UK J-Board (1 of 5) and H3-Board Schematic Diagram
R2398
0
R2426
470
9V_2
R2385
15k
!
H3-BOARD
TXAUW01ZMTU
TH-50PH9UK
83

Table of Contents

Other manuals for Panasonic TH-50PH9UK

Related product manuals