EasyManua.ls Logo

Plockmatic BK5030 - Installation Procedure; Installation Requirements; Minimum Space Requirements

Plockmatic BK5030
102 pages
Print Icon
To Next Page IconTo Next Page
To Next Page IconTo Next Page
To Previous Page IconTo Previous Page
To Previous Page IconTo Previous Page
Loading...
1-1
November 2012
Installation
requirements
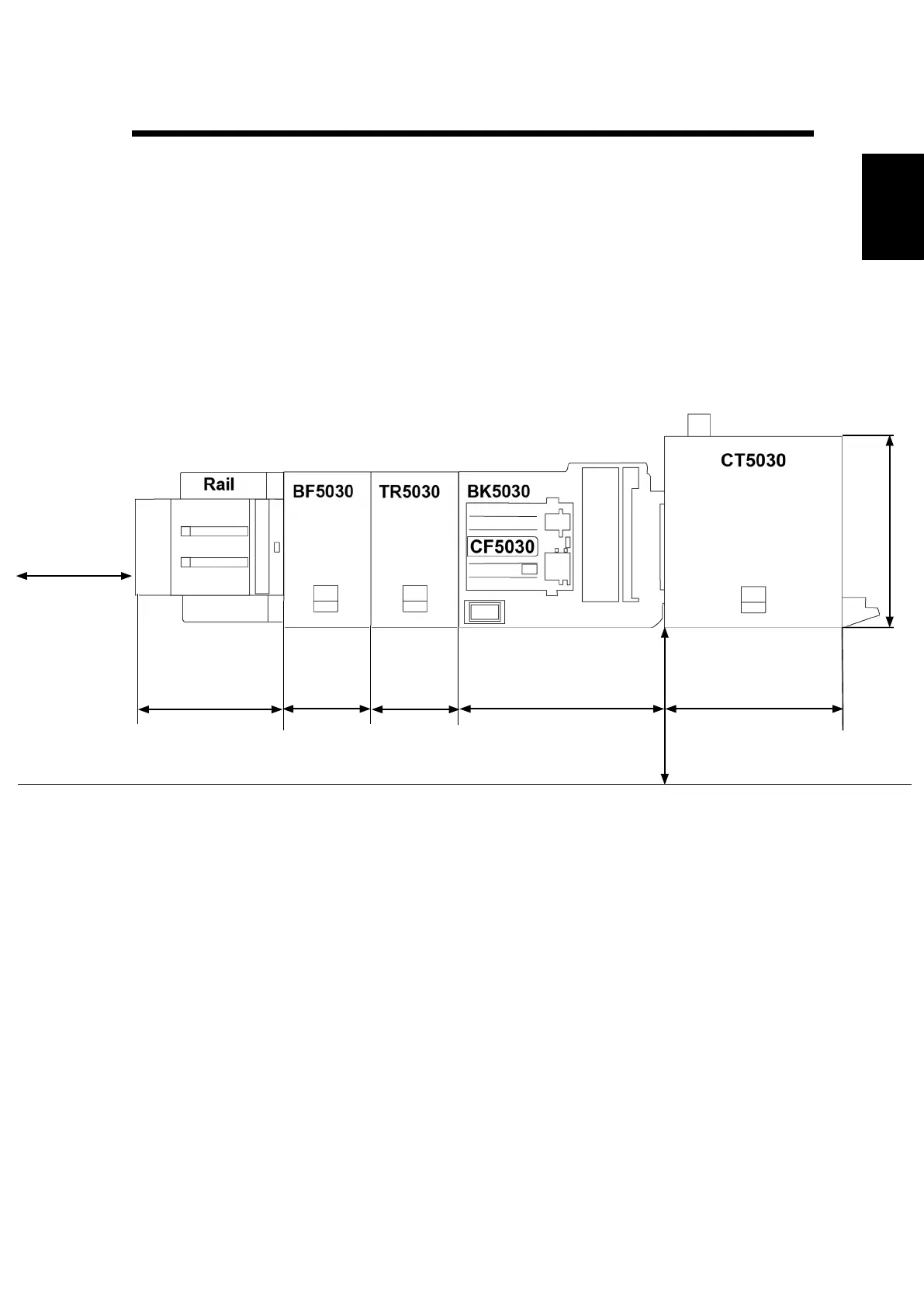
INSTALLATION REQUIREMENTS
1 INSTALLATION PROCEDURE
1.1 INSTALLATION REQUIREMENTS
1.1.1 MINIMUM SPACE REQUIREMENTS
420-630 mm
16.5-24.8”
360 mm
14.2”
360 mm
14.2”
810 mm
31.9”
400 mm
15.8”
700 mm
27.6”
500 mm
21.8”
760 mm
29.9”

Other manuals for Plockmatic BK5030

Related product manuals