EasyManua.ls Logo

Ravelli Hydro - Page 192

Ravelli Hydro
Print Icon
To Next Page IconTo Next Page
To Next Page IconTo Next Page
To Previous Page IconTo Previous Page
To Previous Page IconTo Previous Page
Loading...
Bedienungs- und Wartungshandbuch Touch Radio Hydro
Pag.27
Rev.0 18/05/2021
DE
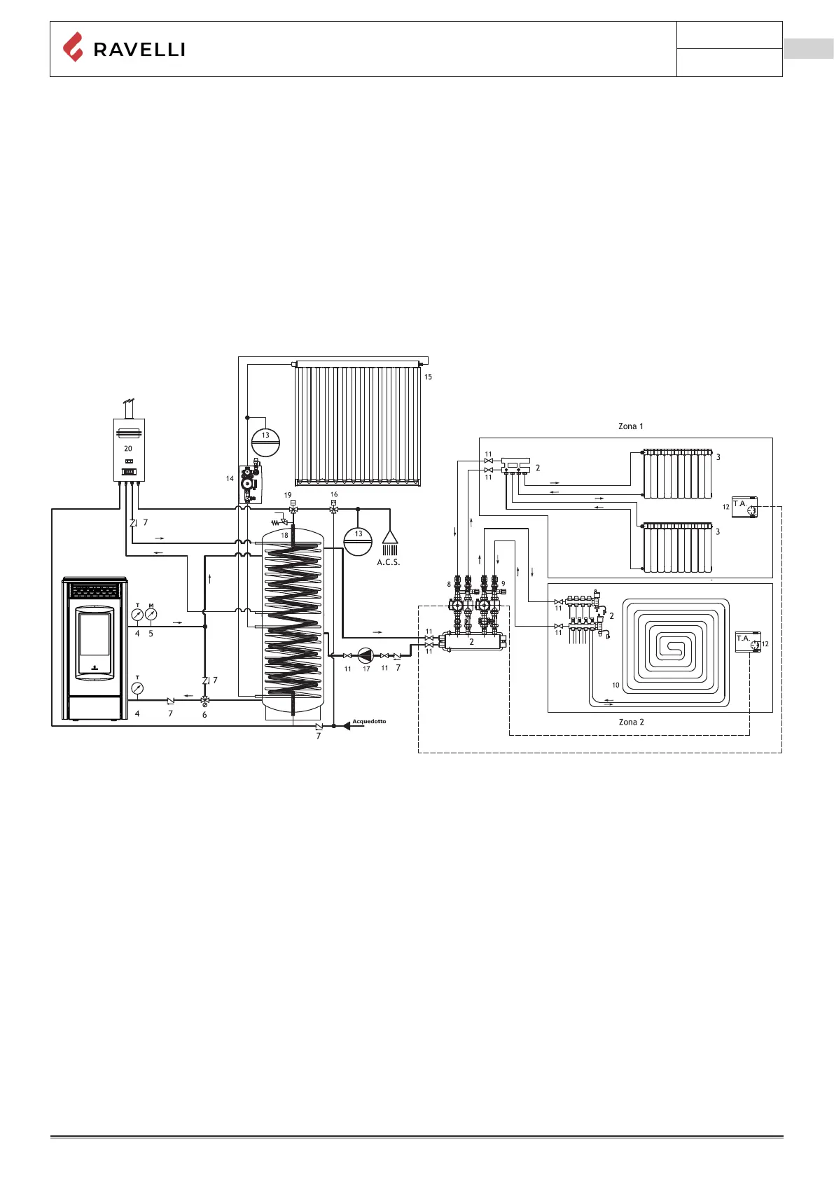
Schema 2 (Sonde Pu󰀨er)
Schema 2 kann in einer Anlage verwendet werden, in der auch ein Sammeltank (Puffer) verwendet wird, der die Heizanlage und, falls
vorgesehen, auch die Generierung von Brauchwasser steuert. In dieser Anlage ist der Heizofen direkt mit dem Puffer verbunden. In
dieser Art von Kreislauf erfolgt die Steuerung der Umgebungstemperatur durch ein Steuergerät (nicht im Lieferumfang enthalten),
das den Puffer und eventuell vorhandene Zonenventile steuert. Die Temperatur des Puffers wird vom Heizofen durch eine Sonde
gesteuert. Der Heizofen läuft bei maximaler Leistung, um die eingestellte Temperatur des Puffers zu erreichen. Wird sie erreicht, geht
der Heizofen in den Zustand Eco-Stop über und schaltet sich erneut ein, wenn die Temperatur des Puffers unter diesen Wert sinkt.
Der Vorteil der Verwendung des Puffers liegt darin, dass er den Betrieb des Heizofen reguliert. Der Puffer kann an andere wärme-
produzierende Geräte, wie beispielsweise Solarzellenpaneele und Gasheizkessel, angeschlossen werden.
Bei dem hier angegebenen Schema handelt es sich um Richtwerte und es sind eventuell nicht alle für die korrekte Funktion der
Anlage notwendigen Komponenten angegeben. Für die Planung der Hydraulikanlage ist ein qualifizierter Heiztechniker zu Rate zu
ziehen.
Stufa a Pellet
LEGENDE
1- Pellet Ofen
2- Heizverteiler
3- Heizkörper
4- Thermometer
5- Druckmesser
6- Antikondensationsventil
7- Rückschlagventil
8- Direktverteilergruppe
9- Thermostatische Verteilergruppe
10- Heizplatte (Fußboden Heizung)
11- Abfangventil
12- Umgebungsthermostat
13- Ausdehnungsgefäß
14- Solarpumpengruppe
15- Sonnenkollektor
16- Thermostatisches Mischventil
17- Umwälzpumpe
18- Pipe-in-Tank Puffer mit Brauchwasser
19- Motorisiertes Drei-Wege-Ventil mit
Federrückschlag
20- Gasheizkessel

Table of Contents

Other manuals for Ravelli Hydro

Related product manuals