EasyManua.ls Logo

Ravelli Hydro - Page 247

Ravelli Hydro
Print Icon
To Next Page IconTo Next Page
To Next Page IconTo Next Page
To Previous Page IconTo Previous Page
To Previous Page IconTo Previous Page
Loading...
Manual de uso y mantenimiento Touch Radio Hydro
Pag.26
Rev.0 18/05/2021
ES
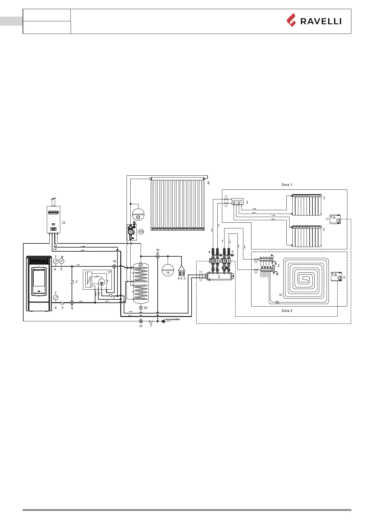
Esquema 1 (sonda del calentador)
El esquema 1 permite gestionar una instalación de calefacción en la que hay un calentador para la producción de ACS. El calentador
puede estar conectado a otras unidades para producir calor, como por ejemplo a paneles solares.
Con este esquema, la estufa funciona para llevar el calentador a la temperatura configurada; ya que se alcanza la temperatura del
agua configurada, la válvula de tres vías cambia de posición y la termo-estufa empieza a intercambiar en la instalación de calefac-
ción. A partir de este momento, la caldera se gestiona con el termostato externo o con el set H2O interno (como para el esquema 0).
La termo-estufa calienta de nuevo el Calentador cuando la temperatura del agua del mismo baja por debajo del valor de puesta en
marcha o cuando el medidor de flujo (si lo lleva) detecta que se usa agua caliente sanitaria.
Si la termo-estufa está en estado ECO STOP o en modalidad STAND-BY AGUA, con las condiciones clásicas de puesta en marcha
del esquema 0, se añade la solicitud que proviene del Calentador o del medidor de flujo.
El esquema que se indica en este manual es indicativo y puede que no incluya todos los componentes necesarios para el funcio-
namiento correcto de la instalación. Encargue el proyecto de la instalación hidráulica a un técnico de sistemas térmicos, habilitado.
Stufa a Pellet
LEYENDA
1- Estufa de pellet
2- Colectores de calefacción de distribución
3- Radiadores
4- Termómetro
5- Manómetro
6- Válvula anticondensación
7- Válvula antirretorno
8- Grupo de distribución en directa
9- Grupo de distribución termostático
10- Panel radiante (suelo radiante)
11- Válvulas de interceptación
12- Termostato ambiente
13- Vaso de expansión
14- Grupo de bomba solar
15- Colector solar
16- Válvula mezcladora termostática
17- Grupo separación potencia
18- Válvula de tres vías motorizada
19- Válvula de tres vías motorizada con
retorno de resorte
20- Medidor de Flujo
21- Caldera de acumulación
22- Caldera de gas

Table of Contents

Other manuals for Ravelli Hydro

Related product manuals