EasyManua.ls Logo

Rockwell Automation SMC-Flex

Rockwell Automation SMC-Flex
160 pages
To Next Page IconTo Next Page
To Next Page IconTo Next Page
To Previous Page IconTo Previous Page
To Previous Page IconTo Previous Page
Loading...
Installation 2-7
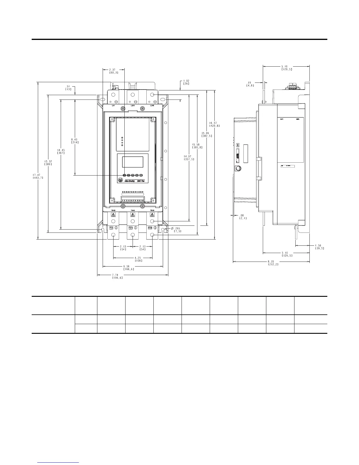
Figure 2.4 Dimensions: 108…135 A Controllers
All dimensions are approximate and are not intended for manufacturing purposes. Consult your
local Allen-Bradley distributor for complete dimension drawings.
Unit
A
Width
B
Height
C
Depth
DEFG
Approx.
Ship. Wt.
108…135 A
Controller
mm 196.4 443.7 212.2 166.6 367 129.5 26 15 kg
in. 7.74 17.47 8.35 6.56 14.45 5.10 1.02 33 lb.
A
B
C
D
E
F
G

Table of Contents

Other manuals for Rockwell Automation SMC-Flex

Related product manuals