EasyManua.ls Logo

Scaime eNod4-D ETHERNET - Typical Connections; JB4 Option

Scaime eNod4-D ETHERNET
81 pages
Print Icon
To Next Page IconTo Next Page
To Next Page IconTo Next Page
To Previous Page IconTo Previous Page
To Previous Page IconTo Previous Page
Loading...
19
SCAIME Manual : NU-eNod4D-ETH-E-0418_216710-E.docx
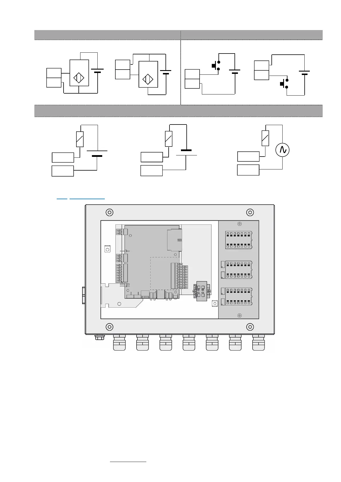
4.5.1 Typical connections
Inputs : Connection to a detector Inputs : Connection to a push button
Outputs : Possible connections
4.6 JB4 option
PNP
+
-
S
IN+
IN-
NPN
+
-
S
IN+
IN-
+
-
IN+
IN-
+
-
IN+
IN-
+
-
Load
OUT
OUT
COM
+
-
Load
OUT
OUT
COM
Load
OUT
OUT
COM

Table of Contents

Related product manuals