EasyManua.ls Logo

Shimadzu EI-D3203M - Page 33

Shimadzu EI-D3203M
123 pages
Print Icon
To Next Page IconTo Next Page
To Next Page IconTo Next Page
To Previous Page IconTo Previous Page
To Previous Page IconTo Previous Page
Loading...
SECTION 5 INSTALLATION
20
263-13228
5
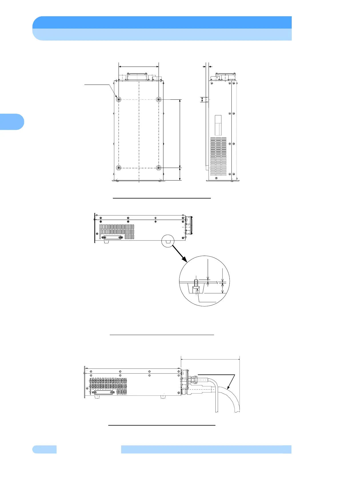
Fig.5-3 Location of rubber pads
(Note 1) Use the prescribed screws to attach the rubber pads. Using the wrong screws can
lead to damage or failure of the power supply unit.
FIg.5-4 Attaching the rubber pads
Fig.5-5 Space to connect the cable
160mm
50mm
273mm
12mm
rubber pads
(4 places
MAX
φ20mm
(M4×8)
1.5mm
2.5mm MAX
12mm
240
Control cable

Table of Contents

Related product manuals