EasyManua.ls Logo

Siemens AVS75.390 - Plant Diagram 12; Plant Diagram 13

Siemens AVS75.390
221 pages
To Next Page IconTo Next Page
To Next Page IconTo Next Page
To Previous Page IconTo Previous Page
To Previous Page IconTo Previous Page
Loading...
197/221
Siemens Switzerland Ltd
User manual RVS61.843 CE1U2355en_02
HVAC Products 7 Plant diagrams 23. November 2007
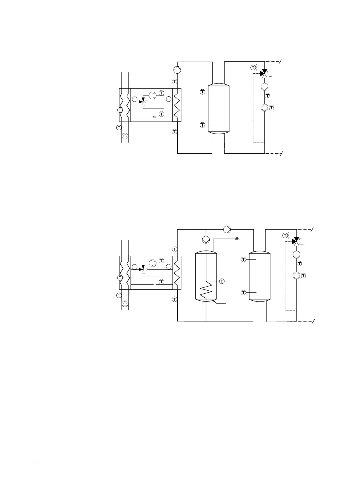
7.1.12 Plant diagram 12
Air-to-water heat pump with buffer storage tank and mixing or pump heating circuit.
B4
B41
B21
B71
Q9
B9
Y1/Y2
Q2
B1
RG
K1/E11
P
B81
E10
B83
B91
K19/E14
B84
P
E9
Y22
7.1.13 Plant diagram 13
Air-to-water heat pump with buffer storage tank, DHW storage tank with charging pump
Q3, and mixing or pump heating circuit.
B3
Q3
Q9
B21
B71
B4
B41
B9
Y1/Y2
Q2
B1
RG
K1/E11
P
B81
E10
B83
B91
K19/E14
B84
P
E9
Y22

Table of Contents

Related product manuals