EasyManua.ls Logo

Siemens MXL-IQ - Page 14

Siemens MXL-IQ
180 pages
Print Icon
To Next Page IconTo Next Page
To Next Page IconTo Next Page
To Previous Page IconTo Previous Page
To Previous Page IconTo Previous Page
Loading...
1-2
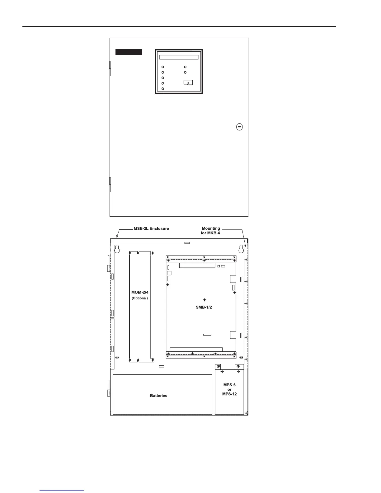
Description
Figure 1
The MXL-IQ Control Panel
ALARM
DISPLAY
NEXT HOLD
POWER
PARTIAL
SYSTEM
DISABLE
SECURITY
TROUBLE
SUPERVISORY
AUDIBLE
SILENCE
MXL-IQ
SIEMENS
Interior View
Exterior View

Table of Contents

Related product manuals