EasyManua.ls Logo

Sinoboom 0607SE - Page 82

Sinoboom 0607SE
114 pages
Print Icon
To Next Page IconTo Next Page
To Next Page IconTo Next Page
To Previous Page IconTo Previous Page
To Previous Page IconTo Previous Page
Loading...
© Jan 2022 6-18 0607SE Maintenance Manual
REPAIR
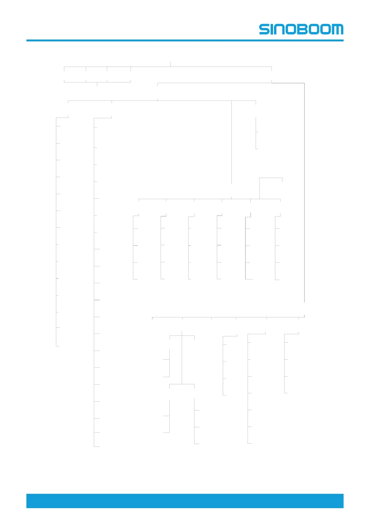
Figure 6-15 System interface description (continued)
ECU main interface(continued)
System
settings
IO
functional test
Unlock
vehicle
Info query
Parameter debugging
Manufacturer parameters
System ParametersWarning parameters
Warning setting
Up limit switch
Level gauge
X-axis warning
Raised/stowed
shift point
Allowable overload
lowering height
Walk limit height
Low battery capacity
alarm value(Lithium
battery)
Outdoor height
limit value
Low voltage
alarm time
Standby time
Drive motor
current limit
Pump motor
current limit
Deceleration
time 1
Deceleration
time 2
Down limit switch
Lowering delay protection
Pit protection switch
Outdoor mode
Weighing device
Angle sensor
Level inclination
switch
Function Keys
Level Angle Sensor
Walk limit on pit
Standby function
Down overload restraint
Horn configuration
80/90 Overweight alarm
GPRS
comm config
Single pressure
Double pressure
Overload limit
Walk & lift alarming
see the previous page
Foot switch
Anti-collision switch
User selection
Model
selection
Country selection
Driver select
Lithium
battery
China
Europe
Korea
Japan
Motion parameters
Lifting
motion
Lowering
motion
Travel, raised
High speed,
stowed
Low speed,
stowed
Composite motion
compensation
Acceleration
slope
Max speed
Min speed
Deceleration
slope
Parameter
calibration
Steering
motion
Calibrate Joystick
Calibrate level
gauge
Calibrate height
Calibrate weight
Calibrate joystick
upper end
Calibrate joystick
middle end
Calibrate joystick
lower end
Calibrate X-axis
Calibrate Y-axis
No-load calibration
Full-load calibration
Access with a password
Access with a password
Level gauge
Y-axis warning
Low battery capacity
alarm value
(Lead-acid battery)
Acceleration
slope
Max speed
Min speed
Deceleration
slope
Acceleration
slope
Max speed
Min speed
Deceleration
slope
Acceleration
slope
Max speed
Min speed
Deceleration
slope
Acceleration
slope
Max speed
Min speed
Deceleration
slope
Acceleration
slope
Max speed
Min speed
Deceleration
slope
Curtis_DC
ZAPI_DC
Curtis_DC_CAN
Curtis_TWO_AC
ZAPI_TWO_AC
ZAPI_DC_CAN
QianTuo_DCCAM
Motor
options
Wannan
600W
Yucheng
600W
Yucheng
700W
Wannan
700W

Table of Contents

Related product manuals