EasyManua.ls Logo

Slican IPM-032 - Battery Management Sub Module

Slican IPM-032
46 pages
Print Icon
To Next Page IconTo Next Page
To Next Page IconTo Next Page
To Previous Page IconTo Previous Page
To Previous Page IconTo Previous Page
Loading...
Slican IPM-032
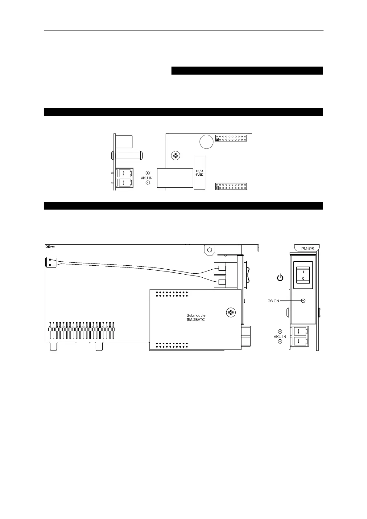
4.11.3 Battery management sub module
Module name: SM.3BATC Short description of the sub module:
The sub module is responsible for charging
accumulators and supplying current from batteries
for server operation.
Print name: IPM3BATCv1
View of an accumulator management sub module:
Installing the sub module:
Accumulator management sub module is installed on the return power supply card: IPM1PS.
Figure 4
17
: Power supply card IPM1PS with sub module SM.3BATC installed for battery
management (version for a server in 2U housing)
Issue 1.01 39

Table of Contents