EasyManua.ls Logo

SMC Networks HRR012-A*-20 Series - Hrr024;030-W-20

SMC Networks HRR012-A*-20 Series
160 pages
Print Icon
To Next Page IconTo Next Page
To Next Page IconTo Next Page
To Previous Page IconTo Previous Page
To Previous Page IconTo Previous Page
Loading...
HRX-OM-W002-A
Chapter 9 Documents
HRR Series
9.2
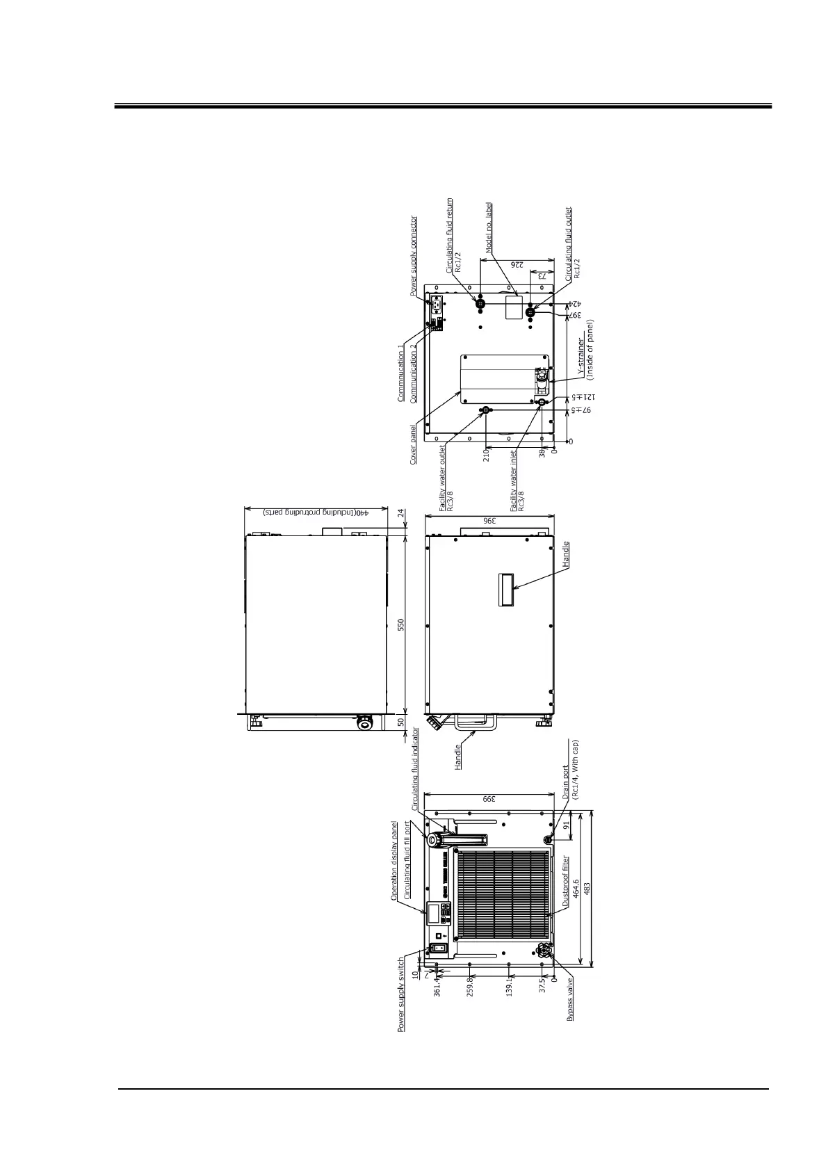
Outline dimensions
9-9
9.2.4 HRR024/030-W-20-
For Option Y(With feet and no Rack Mounting bracket), refer to [6.4 Option Y(With
feet and no Rack Mounting bracket).
Fig. 9-4 Outline dimensions (HRR024/030-W-20-)

Table of Contents

Other manuals for SMC Networks HRR012-A*-20 Series

Related product manuals