EasyManua.ls Logo

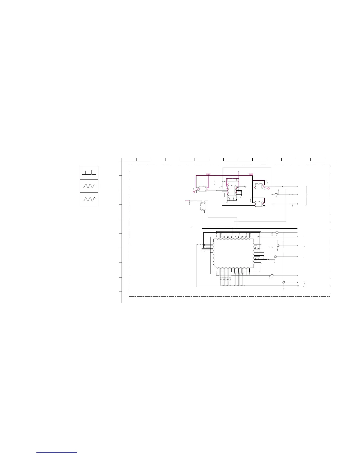
Sony KP-44PS2 - Schematic Diagram of B3 (5;5) Board

Sony KP-44PS2
128 pages
Print Icon
To Next Page IconTo Next Page
To Next Page IconTo Next Page
To Previous Page IconTo Previous Page
To Previous Page IconTo Previous Page
Loading...
106 107 108
@'
3.4 Vp-p (23 MHz)
@,
4.6 Vp-p (36 MHz)
@;
3.2 Vp-p (H)
123456
7
8 9 10 11 12 13
14
15
A
B
C
D
E
F
G
H
I
J
(8) Schematic Diagram of B3 (5/5) Board
28
26
1.2
0.4
0.3
1.6
2.4
0
0
0
0
1.2
2.4
0.4
1.8
3.5
27
A5V-1A5V-1
1 2 3 4 5 6 7 8 9 10 11 12 13 14 15 16 17 18 19 20 21 22 23 24
25
26
27
28
29
30
31
32
33
34
35
36
37
38
39
40
414243444546474849505152535455565758596061626364
65
66
67
68
69
70
71
72
73
74
75
76
77
78
79
80
EMI
G
EMI
G
EMI
G
1 2 3
45
R310
R324
R323
R321
R318
R313
R309
R311
R316
C333
R339
R350
FL306
R333
22
:CHIP
0
:CHIP
0
:CHIP
0
:CHIP
NFM51R10P107
#
SUB Y/C
VDOPLLHLD
VDO CLK IN
VDOCLAMP
U SUB AD
ANREF2
ANREF1
Y SUB AD
V SUB AD
XVDOHS
D5V
A5V-1
D3.3V-MID
C0
C1
C2
C3
C4
C5
C6
C7
Y0
Y1
Y2
Y3
Y4
Y5
Y6
Y7
B3
(5/5)
(PLL)
B-SS737.<AEP>-B3.-P5-05
TO B3(4/5)
TO B3(4/5)
TO B3(4/5)
TO B3(4/5)
NC
IN
GND
VCC
OUT
TO B3(4/5)
AVSS
CIN
CIO
AVDD
CRT
CRTS
DVSS
DVSS
C0
C1
C2
C3
C4
C5
C6
C7
DVDD
DVDD
B0
B1
B2
B3
B4
B5
B6
B7
DVSS
DVSS
A0
A1
A2
A3
A4
A5
A6
A7
TGR
AVSS
DVDD
DVDD
ARBS
ARB
AVSS
AIN
AIO
AVDD
ART
ARTS
BRTS
BRT
AVDD
BIO
BIN
AVSS
BRB
BRBS
AVDD
AVDD
TEST
XAOE
XBOE
XCOE
CTL0
CTL1
CTL2
SY
SEL
CLK
CLP
REF0
REF1
REF2
REF3
CLE
TEST
AVSS
AVSS
AVDD
CRBS
CRB
R351
#
IN B
IN A
GND
VCC
OUT Y
IC309
#
INVERTER
C378
0.01
B:CHIP
C306
#
R302
#
C302
#
C305
#
C309
#
RB301
#
RB302
#
#
#
#
#
#
#
#
#
C330
#
C337
#
C353
#
FL305
#
Q301
#
BUFFER
R330
#
C338
#
R335
#
C354
#
R331
#
C346
#
Q302
#
BUFFER
R332
#
C355
#
R336
#
Q303
#
BUFFER
C339
#
FL304
#
C350
#
C340
#
C331
#
C327
#
R319
#
R305
#
C313
#
C310
#
IC302
#
SUB A/D CONVERTER
123
45
IC314
TC7SET08F
BUFFER
VCC
OUT Y
123
45
IC316
TC7SET08F
BUFFER
IN A
IN B
GND
VCC
OUT Y
123
45
IC315
TC7SET08F
BUFFER
IN A
IN B
GND
R334
0
:CHIP
C376
0.01
B:CHIP
C375
0.01
B:CHIP
C377
0.01
B:CHIP
C369
0.01
B:CHIP
C372
0.01
B:CHIP
1234567
8 9 10 11 12 13 14
IC313
TLC2932IPWR
SUB WRITE PLL
C368
0.01
B:CHIP
LOGIC VDD
SELECT
VCO OUT
FINA
FINB
PFD OUT
LOGIC GND
VCO VDD
R BIAS
VCO IN
VCO INHBIT
PFD INHBIT
NC
VCO GND
R372
22
:CHIP
R373
5.1k
:CHIP
R363
330
:CHIP
R365
820
:CHIP
R366
1k
:CHIP
R367
680k
:CHIP
C373
0.01
B:CHIP
R368
680k
:CHIP
R369
0
:CHIP
R370
#
R371
2.2k
:CHIP
HP SUB PLL
TO B3(1/5)
C374
4.7
35V
:AL-CP
L304
10µH
:CHIP
L305
10µH
:CHIP
A5V-1
B3 (5/5) BOARD WAVEFORMS

Table of Contents