EasyManua.ls Logo

Sony KP-44PS2 - Schematic Diagram of HA and HB Boards

Sony KP-44PS2
128 pages
Print Icon
To Next Page IconTo Next Page
To Next Page IconTo Next Page
To Previous Page IconTo Previous Page
To Previous Page IconTo Previous Page
Loading...
110 109
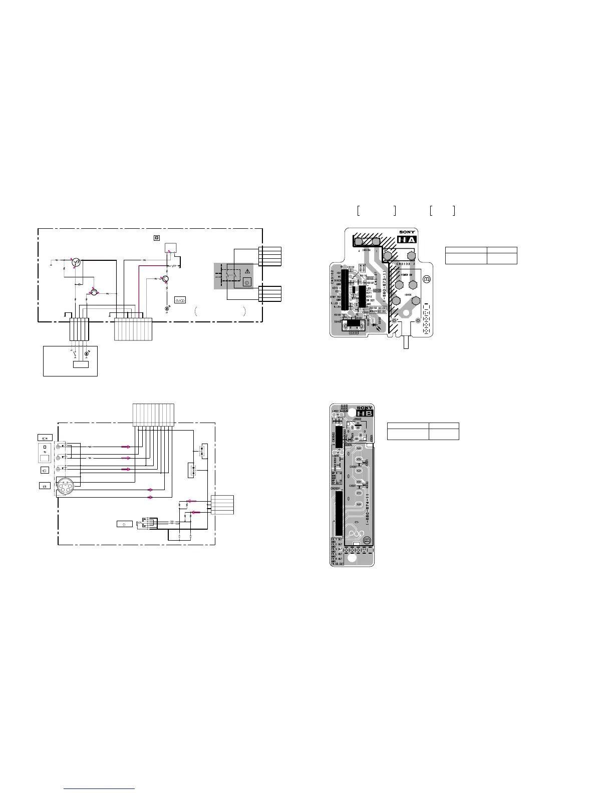
(9) Schematic Diagram of HA and HB Boards
(ha)
USER CONTROL,
MAIN SWITCH
(hb)
AV INPUT,
HP OUT
0
0
4.9
0.2
0
0
5.0
5.0
1
2
3
4
5
6
7
8
9
10
VCC
OUT
GND
1
2
3
4
1
2
3
4
1
2
3
4
5
Q3101
C3101
CN3104
CN3103
R3101
R3104
R3103
R3105
S3101
D3102
10
16V
4B2PS
WHT
:VH
5B3PS
WHT
:VH
2SC2412K
LED SW
470
:CHIP
330
:CHIP
0
:CHIP
0
:CHIP
SLA-580LT3F
LED
AC(N)IN
NC
NC
AC(L)IN
NC
NC
NC
AC(L)OUT
AC(N)OUT
TO G BOARD
CN6007
TO G BOARD
CN6006
POWER
B-SS737.<AEP>-HA.-05
STANDBY
GND
KEY1
STBY +5V
GND
+5V
SIRCS
R.LED
NC
KEY2
5
NC
CONTROL
PANEL
TO A BOARD
CN1302
HA
USER CONTROL,
MAIN SWITCH
LED
KEY2
SW DET
GND
KEY1
CN3101
5P
WHT
:S-MICRO
CN3102
10P
WHT
:S-MICRO
R3106
0
:CHIP
R3107
1k
:CHIP
R3109
1k
:CHIP
R3108
10k
:CHIP
R3110
10
:CHIP
Q3103
2SD1664
LED SW
Q3102
DTA114EKA
LED SW
FUNCTION
KEY
(OPEN/CLOSE)
IC3101
SBX3081-11
IR RECEIVER
C3102
1
16V
:CHIP
AUDIO(R)
C
Y
AUDIO(L)
VIDEO
AUDIO(L)
AUDIO(R)
1
2
3
4
5
6
7
8
9
10
11
12
34
R
L
V
S
J3501
R3502
R3501
CN3501
11P
WHT-L
:S-MICRO
100
:CHIP
100
:CHIP
GND
GND
GND
GND
GND
S-VIDEO
VIDEO
AV4 INPUT
TO J(1/2)BOARD
CN8903
NC
R
L
V
C
Y
(AV INPUT,HP OUT)
B-SS737.<AEP>-HB.-05
R
L
(MONO)
1
2
3
4
5
L3501
L3502
J3502
C3503
R3503 R3505
R3504
C3504
R3506
CN3502
0.022
B:CHIP
0.022
B:CHIP
5P
WHT-L
:S-MICRO
100µH
100µH
220
:CHIP
220
:CHIP
220
:CHIP
220
:CHIP
GND
GND
TO A BOARD
CN1301
SP MUTE(NC)
HP L OUT
HP R OUT
HEAD PHONE
HB
D3501
DAN202K-T-146
D3502
DAN202K-T-146
HA BOARD
Terminal name of semiconductors
in silk screen printed circuit (
*
)
*
: Refer to Terminal name of
semiconductors in silk screen
printed circuit (see page 79)
*
1
Ref.
Q3101 3103
HB BOARD
Terminal name of semiconductors
in silk screen printed circuit (
*
)
*
: Refer to Terminal name of
semiconductors in silk screen
printed circuit (see page 79)
*
8
Ref.
D3501, 3502

Table of Contents

Related product manuals