EasyManua.ls Logo

Söring Arco-3000 - Arrangement of Modules of the MBC 600

Söring Arco-3000
89 pages
Print Icon
To Next Page IconTo Next Page
To Next Page IconTo Next Page
To Previous Page IconTo Previous Page
To Previous Page IconTo Previous Page
Loading...
25/08/2004 ©
Söring
Service-Manual Arco- and RF-units
1
not valid for A-3000/ -2000
2
not valid for Arco-2000
-18-
3
not valid for MBC600
4
not valid for Arco-1000
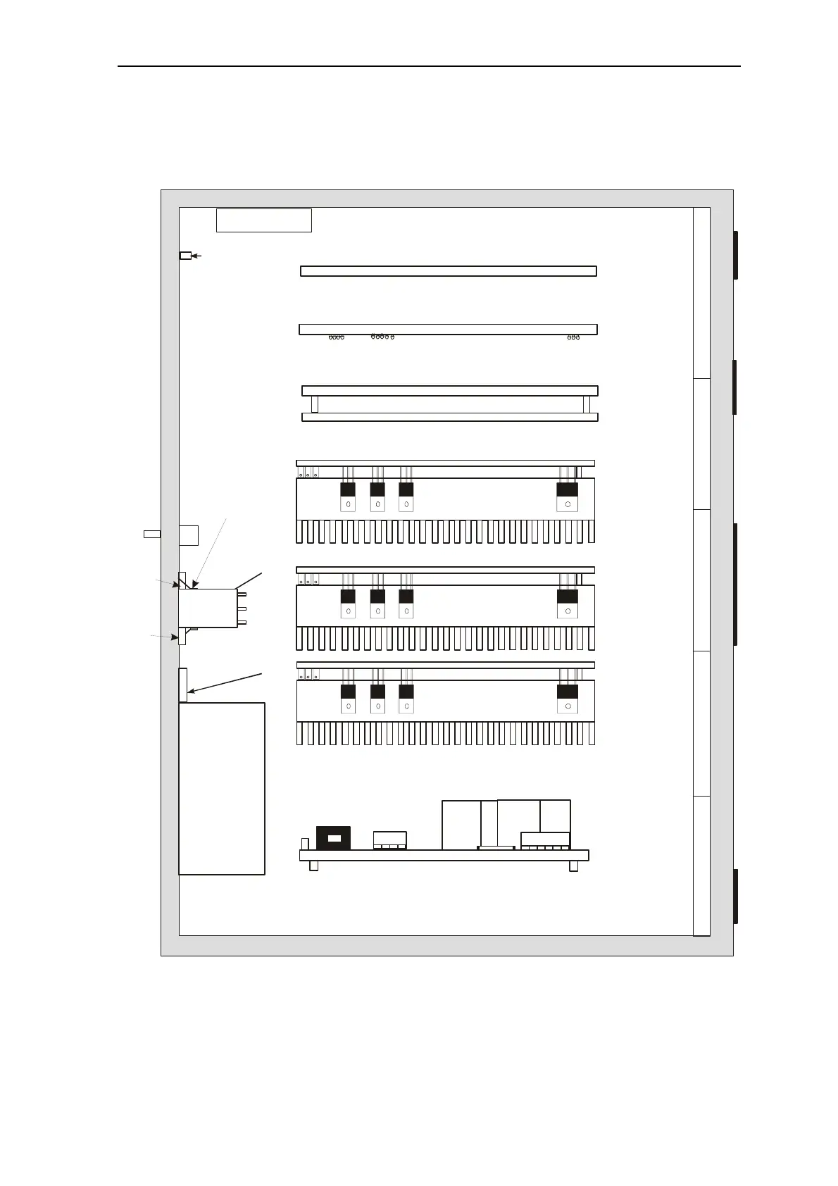
Arrangement of modules of the MBC 600
mains transformer
mains filter
Ground-
pin
rectifier
Patient electrode-
socket
mains switch
Monopolar-
socket
Bipolar-
socket
single
footswitch
loudspeaker
mains board
(low power supply,
mains relays,
screening)
CPU
Handpiece recognition
Output unit (assignment relays,
PE-monitoring, Bipo-recognition)
Cut module
Coagulator module
High power supply
double
footswitch
Loudspeaker Poti
Frontpanel (modular design)
MG Mono
MG Mono
MA HF
BI 600/2000
RF output module
Test resistor

Table of Contents

Related product manuals