EasyManua.ls Logo

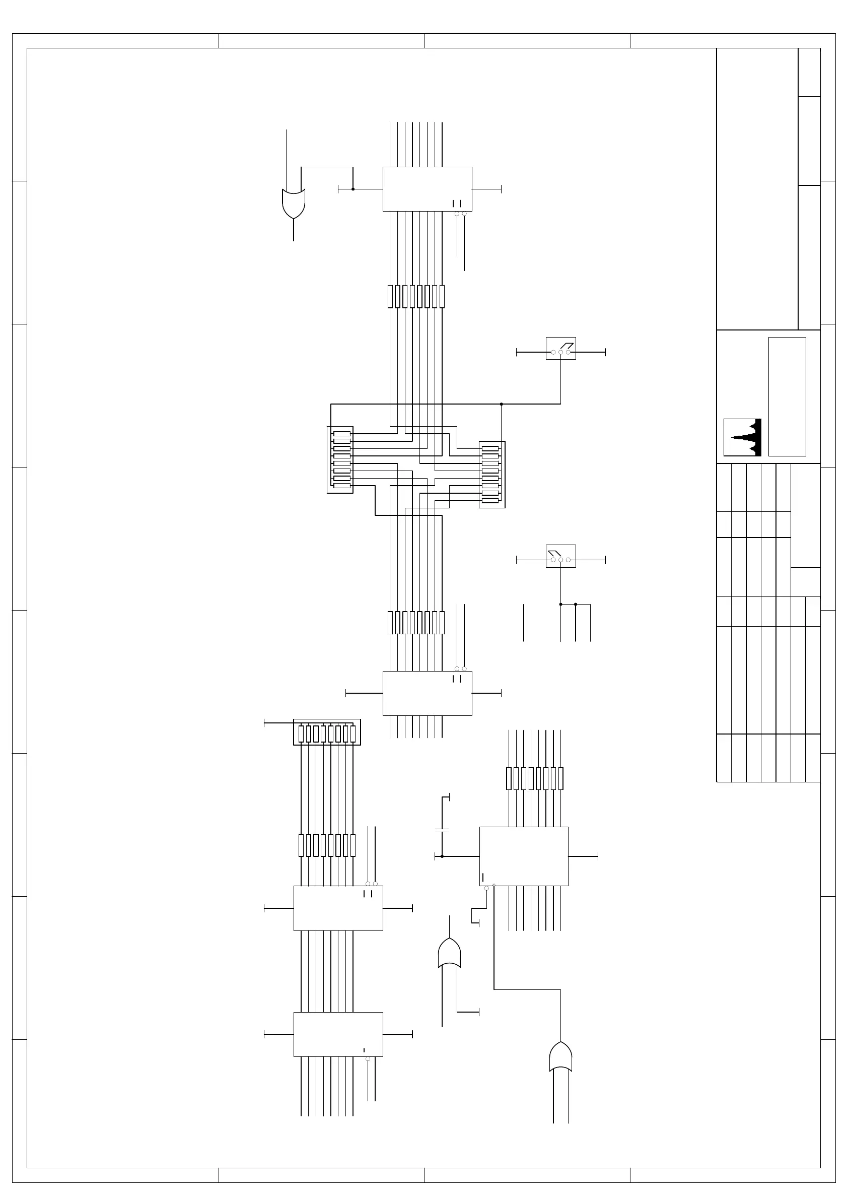
Spectra Engineering MX800 - Circuit Diagram: MX800 CONTROLLER BOARD DIGITAL SECTION; Digital Section Details (continued)

Spectra Engineering MX800
201 pages
Print Icon
To Next Page IconTo Next Page
To Next Page IconTo Next Page
To Previous Page IconTo Previous Page
To Previous Page IconTo Previous Page
Loading...
1 2 3 4 5 6 7 8
A
B
C
D
8
7654321
D
C
B
A
8
9
10
IC9C
74HC32
/CS_MDM_1
11
12
13
IC9D
74HC32
/CS_MDM_2
A0
2
A1
3
A2
4
A3
5
A4
6
A5
7
A6
8
A7
9
B0
18
B1
17
B2
16
B3
15
B4
14
B5
13
B6
12
B7
11
E
19
DIR
1
VCC
20
GND
10
IC45
74HC245
ETH
+5
AD0
AD1
AD2
AD3
AD4
AD5
AD6
AD7
BAD0
BAD1
BAD2
BAD3
BAD4
BAD5
BAD6
BAD7
/IO_SEL1
/BRD
OC
1
CLK
11
1D
2
2D
3
3D
4
4D
5
5D
6
6D
7
7D
8
8D
9
1Q
19
2Q
18
3Q
17
4Q
16
5Q
15
6Q
14
7Q
13
8Q
12
GND
10
VCC
20
IC46
74HC574
+5
C112
100n
ETH
ETH
4
5
6
IC9B
74HC32
ETH
BAD0
BAD1
BAD2
BAD3
BAD4
BAD5
BAD6
BAD7
/BWR
/EX_IO
BAD0
BAD1
BAD2
BAD3
BAD4
BAD5
BAD6
BAD7
D1
2
D2
3
D3
4
D4
5
D5
6
D6
7
D7
8
D8
9
Q1
18
Q2
17
Q3
16
Q4
15
Q5
14
Q6
13
Q7
12
Q8
11
E1
1
E2
19
VCC
20
GND
10
IC48
74HC541
/BRD
/EX_IO_2
+5
ETH
BAD0
BAD1
BAD2
BAD3
BAD4
BAD5
BAD6
BAD7
D1
2
D2
3
D3
4
D4
5
D5
6
D6
7
D7
8
D8
9
Q1
18
Q2
17
Q3
16
Q4
15
Q5
14
Q6
13
Q7
12
Q8
11
E1
1
E2
19
VCC
20
GND
10
IC47
74HC541
/BRD
/EX_IO_1
+5
ETH
9
8
7
6
5
4
3
2
1
SIP3
10K
R169-R176
8 X 1K
SKF-25
SKF-24
SKF-23
SKF-22
SKF-21
SKF-20
SKF-19
SKF-18
DIGITAL OUTPUT PORTC
R161-R168
8 X 10K
R153-R160
8 X 10K
ETHETH
SKF/A-10
SKF/A-11
SKF/A-12
SKF/A-13
SKF/A-14
SKF/A-15
SKF/A-16
SKF/A-17
SKF-2
SKF-3
SKF-4
SKF-5
SKF-6
SKF-7
SKF-8
SKF-9
9
8
7
6
5
4
3
2
1
SIP4
10K
DIGITAL INPUT PORT B DIGITAL INPUT PORT A
BCD CHANNEL SELECT
3 1
2
JMP15
31
2
JMP19
+5
PULL-UP
PULL-DOWN
+5 OUT
ETH OUT
+5
SKF-1
D1
2
D2
3
D3
4
D4
5
D5
6
D6
7
D7
8
D8
9
Q1
18
Q2
17
Q3
16
Q4
15
Q5
14
Q6
13
Q7
12
Q8
11
E1
1
E2
19
VCC
20
GND
10
IC63
74HC541
ETH
/IP_CNTRL2
/BRD
+5
9
8
7
6
5
4
3
2
1
SIP5
10K
+5
R260-R267
8x 10K
SKL-6
SKL-3
SKL-2
SKL-1
MIC_PTT
HOOK
PB2
PB1
SKK-4
SKF/B-4
SKF/B-7
SKF/B-2
SKF/B-5
SKF/B-6
SKF/B-3
SKF/B-9
SKF/B-8
SKF/B-1
SKF/B-10
SKF/A-26 NC
ETH
NOTES
1. SKB = PA
2. SKC=EXCITER
3. SKD=RECEIVER
* REV P ONWARDS
9 TRADE ROAD
MALAGA 6062
WESTERN AUSTRALIA
PHONE +618-92482755
GJ
PG
MX800 CONTROLLER
5 OF 6 ICS001-5I
DATE REVISION TITLE
DRAWING No SHEET REV
PCB
BY DATE
DESIGNED
DRAWN
CHECKED
APPROVED
APP
SPECTRA
ENGINEERING
(C) Copyright
SECTION
GJ
GP
BOARD DIGITAL

Table of Contents

Related product manuals