EasyManua.ls Logo

Subaru Tribeca 2012 - Automatic Transmission Fluid; Checking the Fluid Level

Subaru Tribeca 2012
578 pages
Print Icon
To Next Page IconTo Next Page
To Next Page IconTo Next Page
To Previous Page IconTo Previous Page
To Previous Page IconTo Previous Page
Loading...
Black plate (354,1)
Model "A3170BE-A" EDITED: 2011/ 7/ 12
11-14 Maintenance and service
Automatic transmission fluid
& Checking the fluid level
The automatic transmission fluid expands
largely as its temperature rises; the fluid
level differs according to fluid temperature.
Therefore, there are two different scales
for checking the level of hot fluid and cold
fluid on the level gauge.
Though the fluid level can be checked
without warming up the fluid on the
COLD range, we recommend checking
the fluid level when the fluid is at operating
temperature.
! Checking the fluid level when the
fluid is hot
Check the fluid level monthly.
1. Drive the vehicle several miles to raise
the temperature of the transmission fluid
up to normal operating temperature; 158
to 1768F (70 to 808C) is normal.
2. Park the vehicle on a level surface and
set the parking brake.
3. First shift the select lever in each
position. Then shift it in the P position,
and run the engine at idling speed.
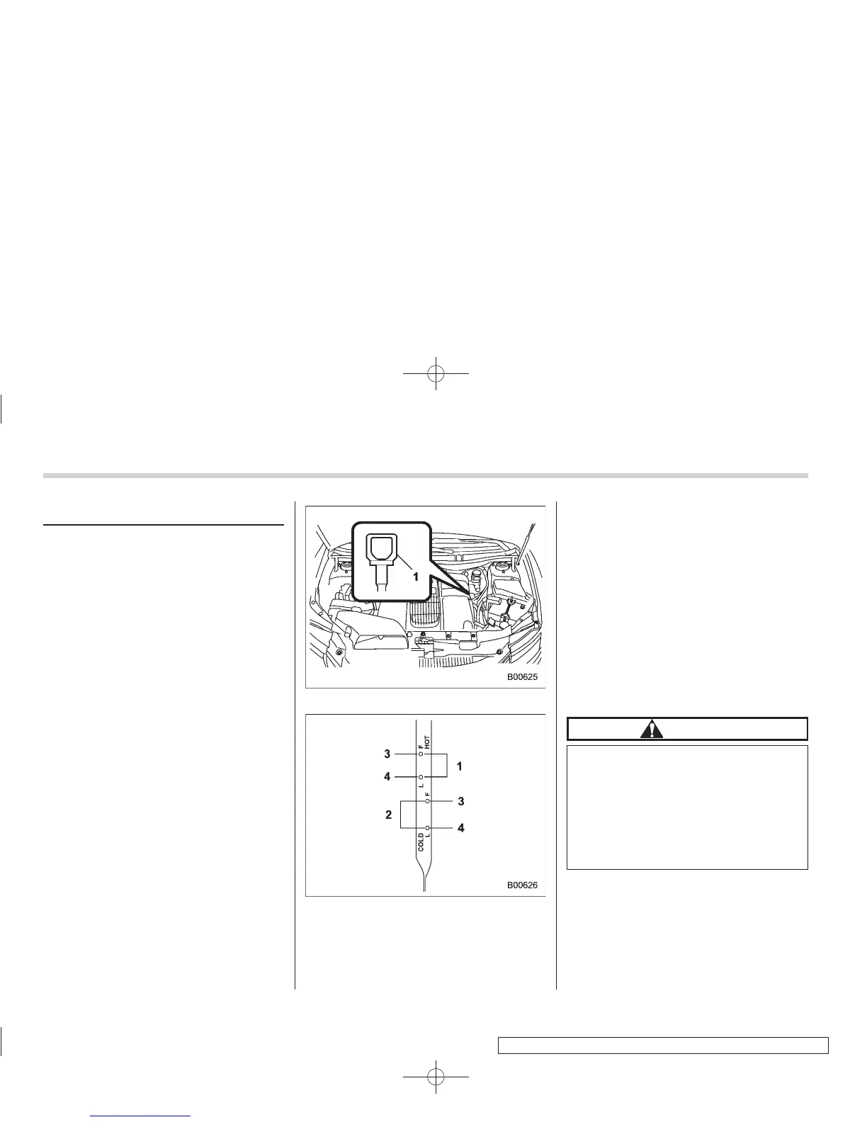
1) Yellow handle
1) HOT range
2) COLD range
3) Upper level
4) Lower level
4. Pull out the level gauge and check the
fluid level on the gauge. If it is below the
lower level on the HOT range, add the
recommended automatic transmission
fluid up to the upper level.
! Checking the fluid level when the
fluid is cold
When the fluid level has to be checked
without time to warm up the automatic
transmission, check to see that the fluid
level is between the lower level and upper
level on the COLD range. If it is below
that range, add fluid up to the upper level.
Be careful not to overfill.
CAUTION
Be careful not to spill automatic
transmission fluid when adding it.
If automatic transmission f luid
touches the exhaust pipe, it may
cause a bad smell, smoke, and/or a
fire. If automatic transmission fluid
gets on the exhaust pipe, be sure to
wipe it off.
Information Provided by:

Table of Contents

Related product manuals