EasyManua.ls Logo

TERASAKI TemBreak 2 - Page 85

Default Icon
108 pages
Print Icon
To Next Page IconTo Next Page
To Next Page IconTo Next Page
To Previous Page IconTo Previous Page
To Previous Page IconTo Previous Page
Loading...
6-3
6
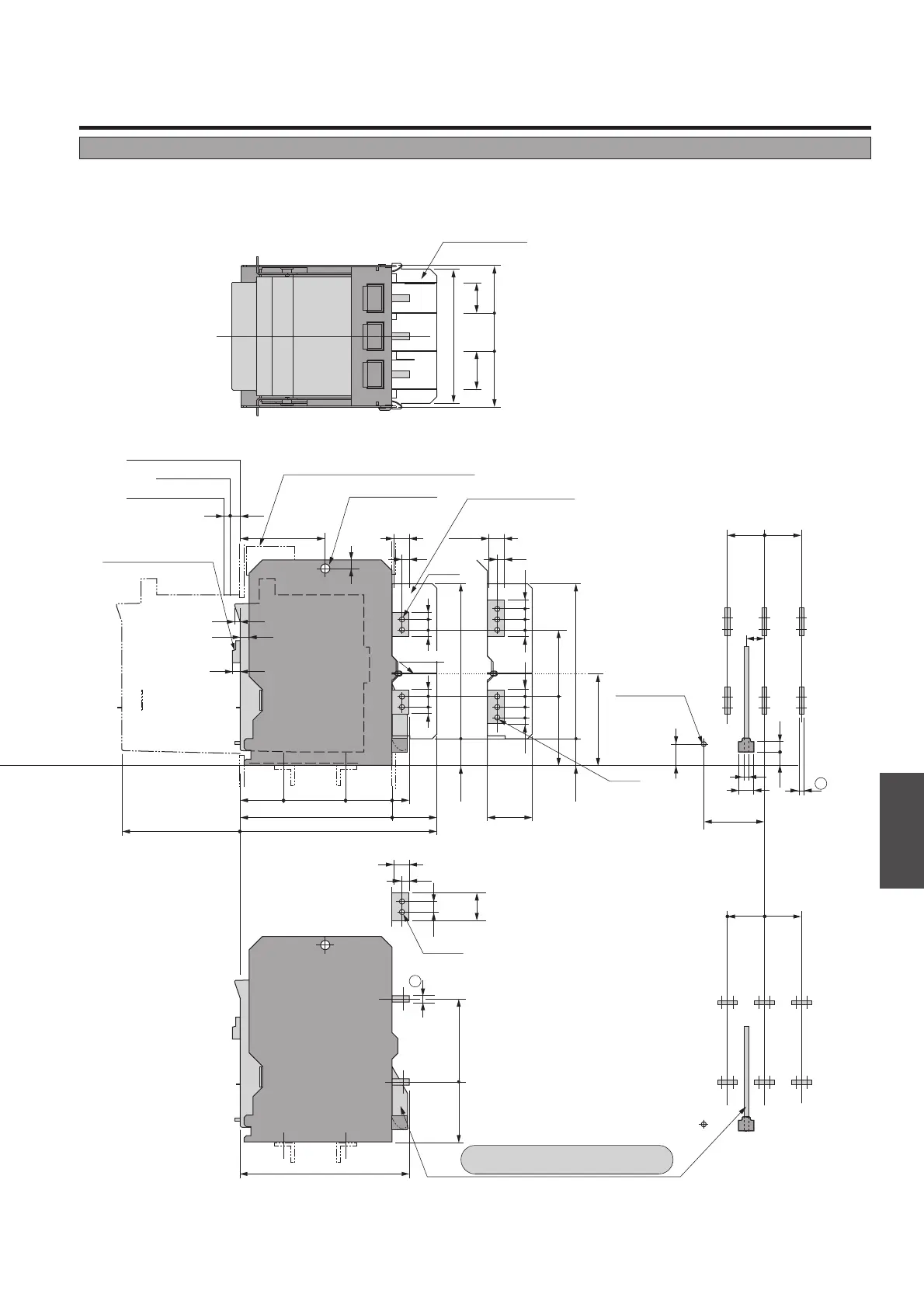
Outline Dimensions
ACB Front cover center line
3-ø11
345 100
40
445
265
141
199
14 21
35
AR216S AR220S
15
2525
25 25
WW
94 110
100
35
15
WW
15.5
14.5
149150.5
204.5
25 25
14.5
15.5
2-ø11
345.5
59.5
345.5
59.5
18
85 85
42.5
9
t
2
40
125 10785
6785
P
C
299.5
12
17
20
33
25 48.5
1
140
35
15
25
52
385
174138
2-ø11
t1
85 85
conductor overlap. max
Lifting hole 2-ø20
M8 screw
earth terminal
CONNECTED position
TEST position
ISOLATED position
ON-OFF button cover
Control circuit terminal cover (optional)
Inter-pole barrier
Inter-pole barrier 1.6t
Inter-pole barrier 2t
Draw-out arm
(comes out when breaker is drawn out)
conductor overlap. max
AR208S 3P, AR212S 3P, AR216S 3P, AR220S 3P

Table of Contents

Other manuals for TERASAKI TemBreak 2

Related product manuals