EasyManua.ls Logo

Toro groundmaster 7210 - Schematics

Toro groundmaster 7210
76 pages
Print Icon
To Next Page IconTo Next Page
To Next Page IconTo Next Page
To Previous Page IconTo Previous Page
To Previous Page IconTo Previous Page
Loading...
Schematics
g022098
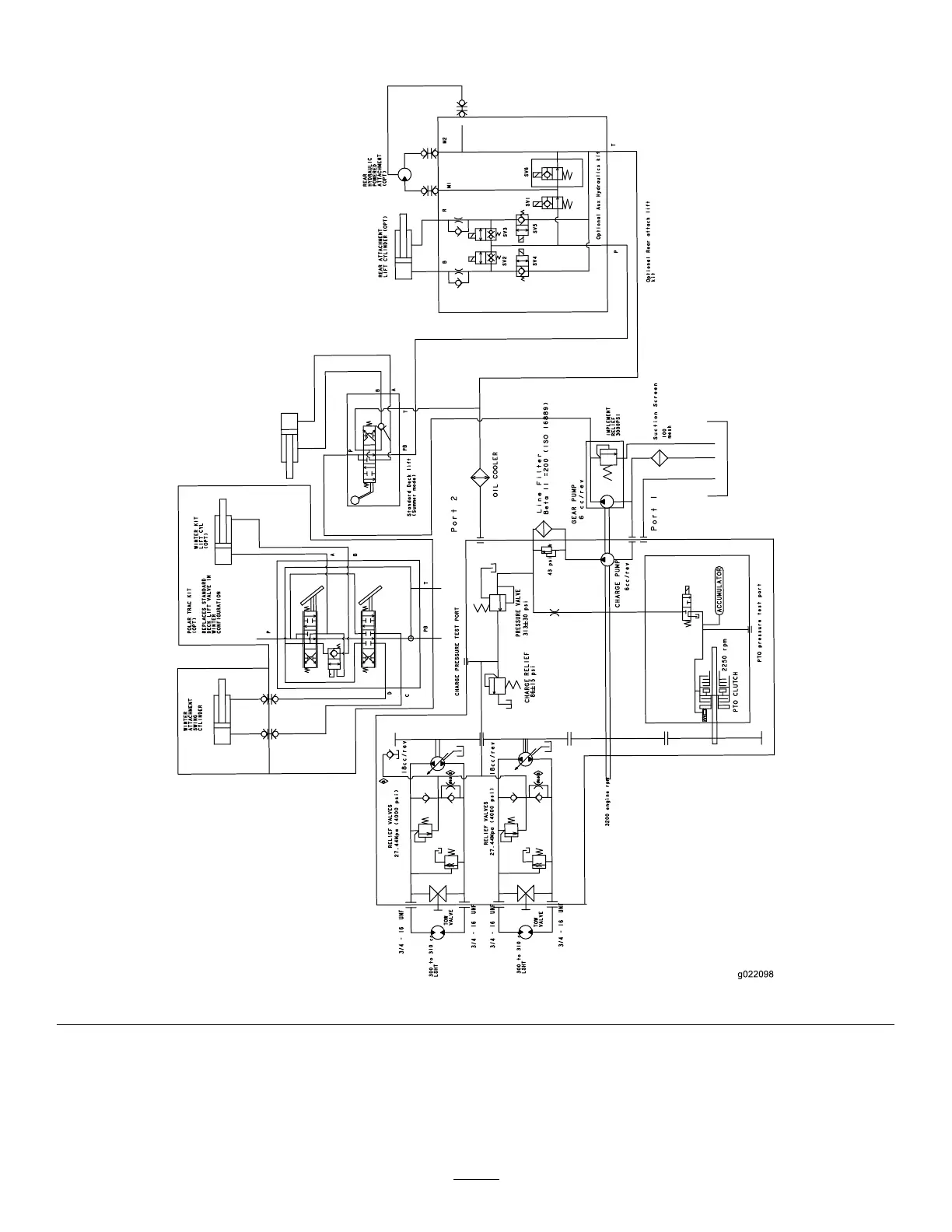
HydraulicSchematic(Rev.B)
75

Table of Contents

Related product manuals