EasyManua.ls Logo

Vertiv Liebert MCV440 - DPN005067

Vertiv Liebert MCV440
140 pages
Print Icon
To Next Page IconTo Next Page
To Next Page IconTo Next Page
To Previous Page IconTo Previous Page
To Previous Page IconTo Previous Page
Loading...
REV : 5
REV DATE : 7/22
DPN005067
Page :1 /2
Form No.: DPN001040_REV4
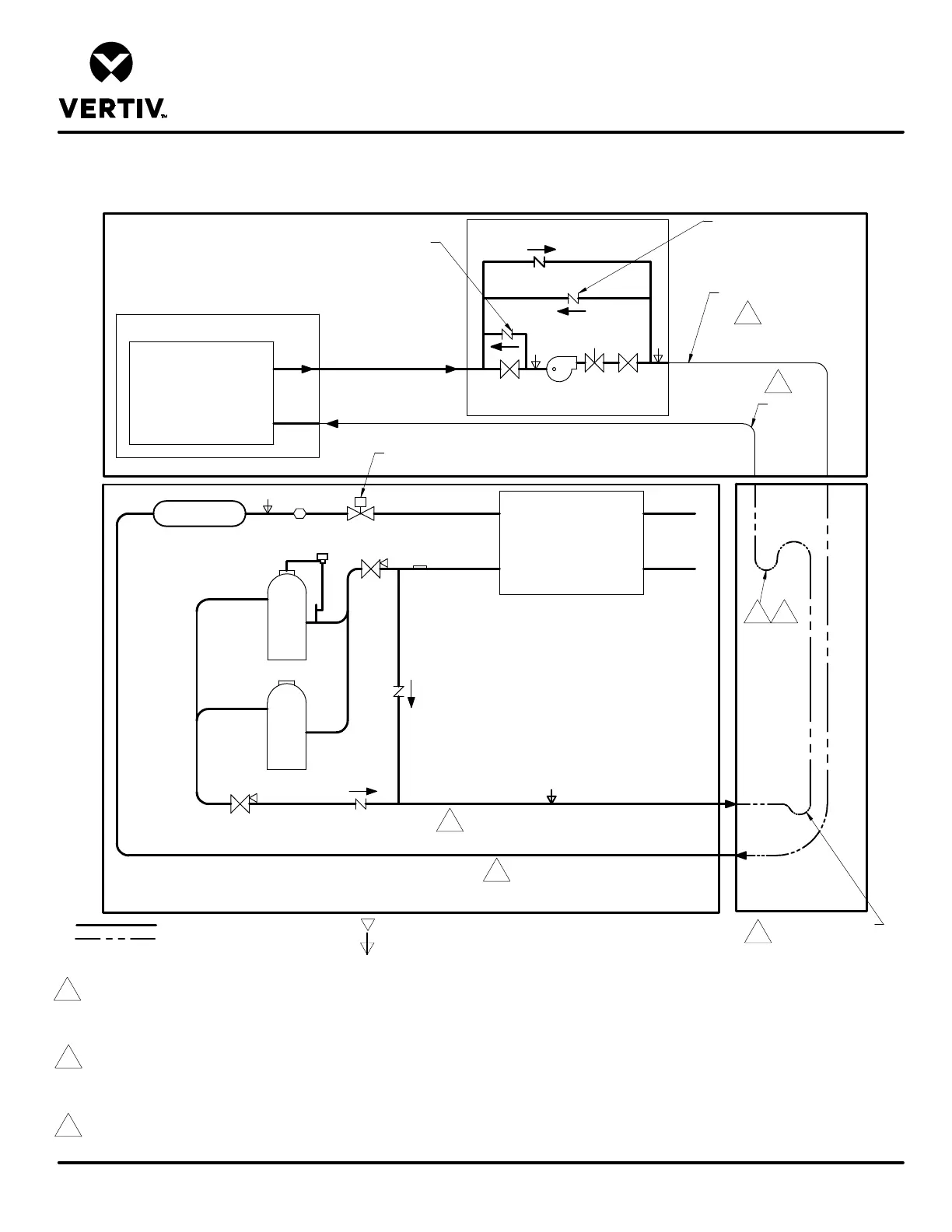
PIPING SCHEMATIC
LIEBERT
®
XDM
LIEBERT® MCV HEAT REJECTION SKID
LIQUID
Two-Circuit
Heat Exchanger
SUCTION
Check
Valve
Trap at base of risers
over 5ft. (1.5m)*
LIQUID RETURN
HOT GAS DISCHARGE
Liebert® EconoPhase
Ball Valve
Ball Valve
Check
Valve
Solenoid
Valve
Notes:
1. Two refrigeration circuits provided. Single refrigeration circuit shown for clarity.
2. Circuit 1 must be maintained between indoor unit, condenser and Liebert® EconoPhase unit. Circuit 2 must be maintained between indoor unit, condenser and EconoPhase unit.
3. Schematic representation shown. Do not use for specific connection locations.
4. The bottom of the condenser coil must be less than 60' (18.3m) above and cannot be more than 15 ft (4.6m) below the elevation of the EEVs inside the indoor unit.
5. All indoor and outdoor field refrigerant piping must be insulated, 1/2" minimum thickness. All outdoor insulation must be UV and ozone resistant.
6. Components are not supplied by Liebert but are required for proper circuit operation and maintenance.
7. Traps must be installed and horizontal lines pitched to ensure proper oil return and to reduce liquid flood back to compressor. Pitch horizontal gas piping at a minimum of
1/2" per 10 feet (42mm per 10m) so that gravity will aid in moving oil in the direction of the refrigeration flow.
8. Do not isolate any refrigeration circuits from over pressurization protection.
9. For rises over 25ft. (7.6m), trap every 20ft. (6m) or evenly divided
Service
Valve
Service
Valve
LIEBERT® XDM
Check
Valve
Liquid to Indoor Unit
Differential
Check Valve
Differential
Check Valve
SERVICE/SCHRADER (ACCESS) CONNECTION, WITH VALVE CORE.
FIELD PIPING
FACTORY REFRIGERANT PIPING
SERVICE/SCHRADER (ACCESS) CONNECTION, NO VALVE CORE.
2
2
6
6
Filter Drier
LIEBERT® MCV CONDENSER
2
2
INTERCONNECTING
PIPING
Sight
Glass
LIEBER XDM with LIEBERT® MCV
9
Hot Gas
Discharge
from Indoor
Unit
OUTDOOR
CONDENSER
Electronic Expansion Valve
Secondary
Circuit
Primary
Circuit

Table of Contents

Related product manuals