EasyManua.ls Logo

Vertiv Liebert MCV440 - DPN003887

Vertiv Liebert MCV440
140 pages
Print Icon
To Next Page IconTo Next Page
To Next Page IconTo Next Page
To Previous Page IconTo Previous Page
To Previous Page IconTo Previous Page
Loading...
REV : 7
REV DATE : 4/22
DPN003887
Page :1 /1
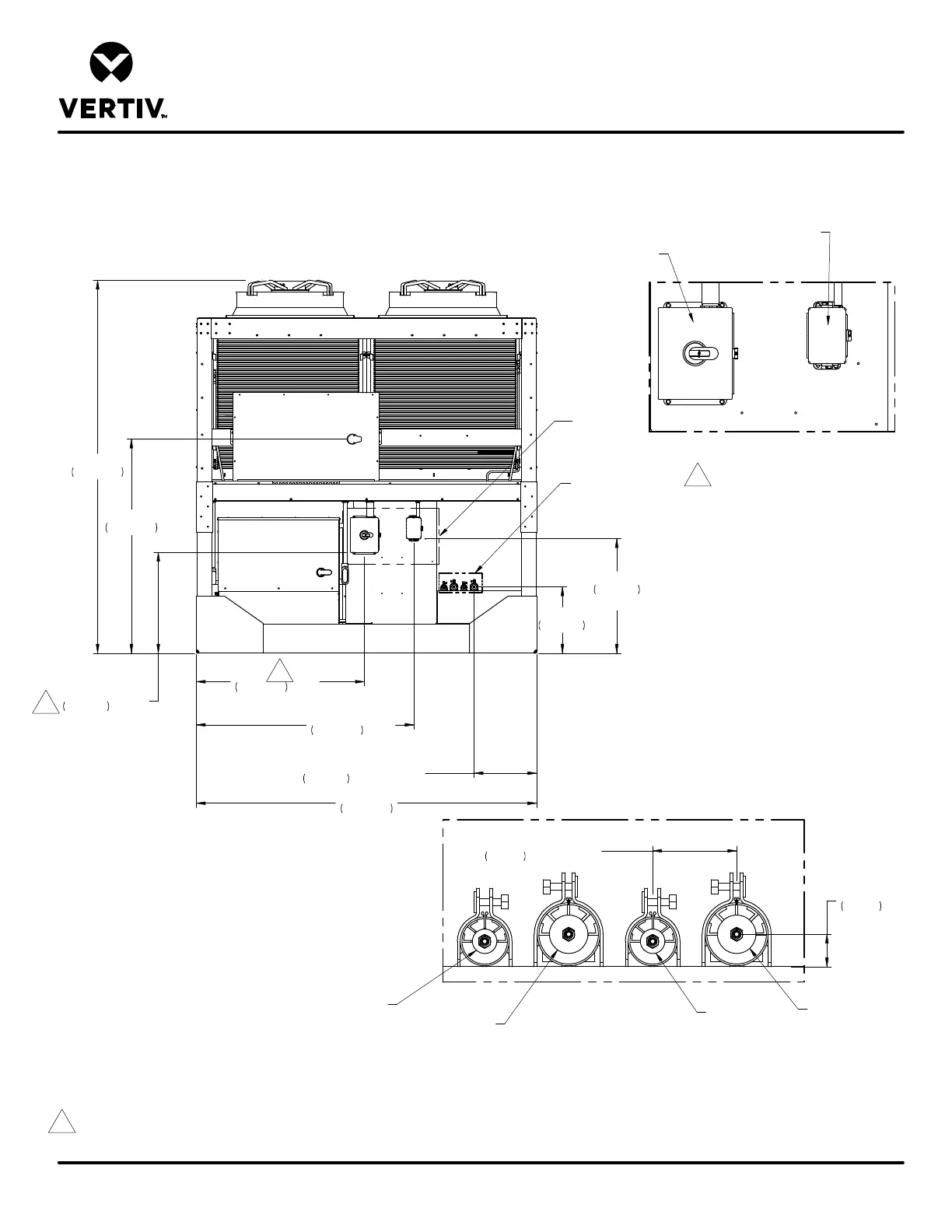
LIEBERT® MCV330 + LIEBER ECONOPHASE
+ BASE ASSY 460V & 575V
Form No.: DPN001040_REV4
PRIMARY CONNECTION LOCATIONS
LIEBERT
®
HEAT REJECTION SKID
LOW VOLTAGE CUSTOMER
CONNECTION
(Field Electrical Connections)
(PIPING CONNECTIONS)
7/8" LIQUID LINE
CIRCUIT 1
1 3/8" HOT GAS
CIRCUIT 1
7/8" LIQUID LINE
CIRCUIT 2
1 3/8" HOT GAS
CIRCUIT 2
Front View
B
DETAIL B
A
DETAIL A
101 1/4"
2572mm
18 5/8"
473mm
u 1/2" (13mm)
19 11/16"
501mm
CIRCUIT 1
CIRCUIT 2
3"
76mm
u 1/2" (13mm)
TYP.
111"
2819mm
64 11/16"
1644mm
CENTER OF BOX
34"
864mm
BOTTOM OF BOX
50"
1269mm
CENTER OF BOX
HIGH VOLTAGE CUSTOMER
CONNECTION
1 3/16"
29mm
30"
762mm
BOTTOM OF BOX
63 11/16"
1617mm
Notes:
1. Field to provide hole for conduit for high voltage disconnect box and low voltage distribution panel.
2. High Voltage Customer Connection for:
Voltage Codes: A=(460V/3 Phase/60Hz); B=(575V/3 Phase/60Hz)
2
2
2

Table of Contents

Related product manuals