EasyManua.ls Logo

Vertiv Liebert MCV440 - DPN004262

Vertiv Liebert MCV440
140 pages
Print Icon
To Next Page IconTo Next Page
To Next Page IconTo Next Page
To Previous Page IconTo Previous Page
To Previous Page IconTo Previous Page
Loading...
REV : 4
REV DATE : 4/22
DPN004262
Page :1 /1
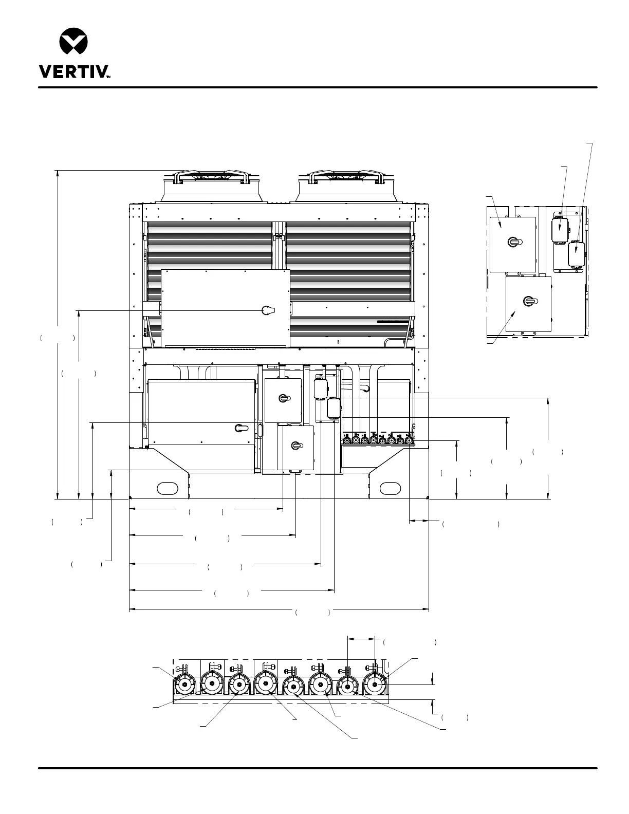
LIEBERT® MCV440 (2) + LIEBER ECONOPHASE (2)
+ BASE ASSEMBLY
Form No.: DPN001040_REV4
PRIMARY CONNECTION LOCATIONS
LIEBERT
®
HEAT REJECTION SKID
Notes:
1. Field to provide hole for conduit for high voltage disconnect box and low voltage distribution panel.
ALL CONNECTIONS MADE FROM SYSTEM 1 END OF UNIT (SHOWN)
B
DETAIL B
(Field Electrical Connections)
A
DETAIL A
(PIPING CONNECTIONS)
SYSTEM 1 CIRCUIT 1
SYSTEM 1 CIRCUIT 2
64 1/4"
1632mm
27 13/16"
706mm
BOTTOM
OF BOX
11 3/16"
284mm
BOTTOM
OF BOX
101 1/4"
2572mm
52"
1320mm
CENTER OF BOX
56 3/16"
1427mm
CENTER OF BOX
64 11/16"
1644mm
CENTER OF BOX
69 3/16"
1758mm
CENTER OF BOX
6 5/8" ±1/2"
168mm ±13mm
27 1/2"
699mm
BOTTOM
OF BOX
34"
864mm
BOTTOM
OF BOX
19 11/16"
501mm
LOW VOLTAGE CUSTOMER CONNECTION
SYSTEM 2
LOW VOLTAGE CUSTOMER CONNECTION
SYSTEM 1
3" ±1/2"
76mm ±13mm
TYP.
1-5/8" HOT GAS
SYSTEM 2, CIRCUIT 2
1 11/16"
42mm
TYP.
1-5/8" HOT GAS
SYSTEM 2, CIRCUIT 1
1-5/8" HOT GAS
SYSTEM 1, CIRCUIT 2
1-5/8" HOT GAS
SYSTEM 1, CIRCUIT 1
1-3/8" LIQUID LINE
SYSTEM 2, CIRCUIT 2
1-3/8" LIQUID LINE
SYSTEM 2, CIRCUIT 1
1-3/8" LIQUID LINE
SYSTEM 1, CIRCUIT 2
1-3/8" LIQUID LINE
SYSTEM 1, CIRCUIT 1
HIGH VOLTAGE
CUSTOMER
CONNECTION
SYSTEM 1
HIGH VOLTAGE
CUSTOMER
CONNECTION
SYSTEM 2
111"
2819mm

Table of Contents

Related product manuals