EasyManua.ls Logo

Vertiv Liebert MCV440 - DPN003878

Vertiv Liebert MCV440
140 pages
Print Icon
To Next Page IconTo Next Page
To Next Page IconTo Next Page
To Previous Page IconTo Previous Page
To Previous Page IconTo Previous Page
Loading...
REV : 7
REV DATE : 4/22
DPN003878
Page :1 /1
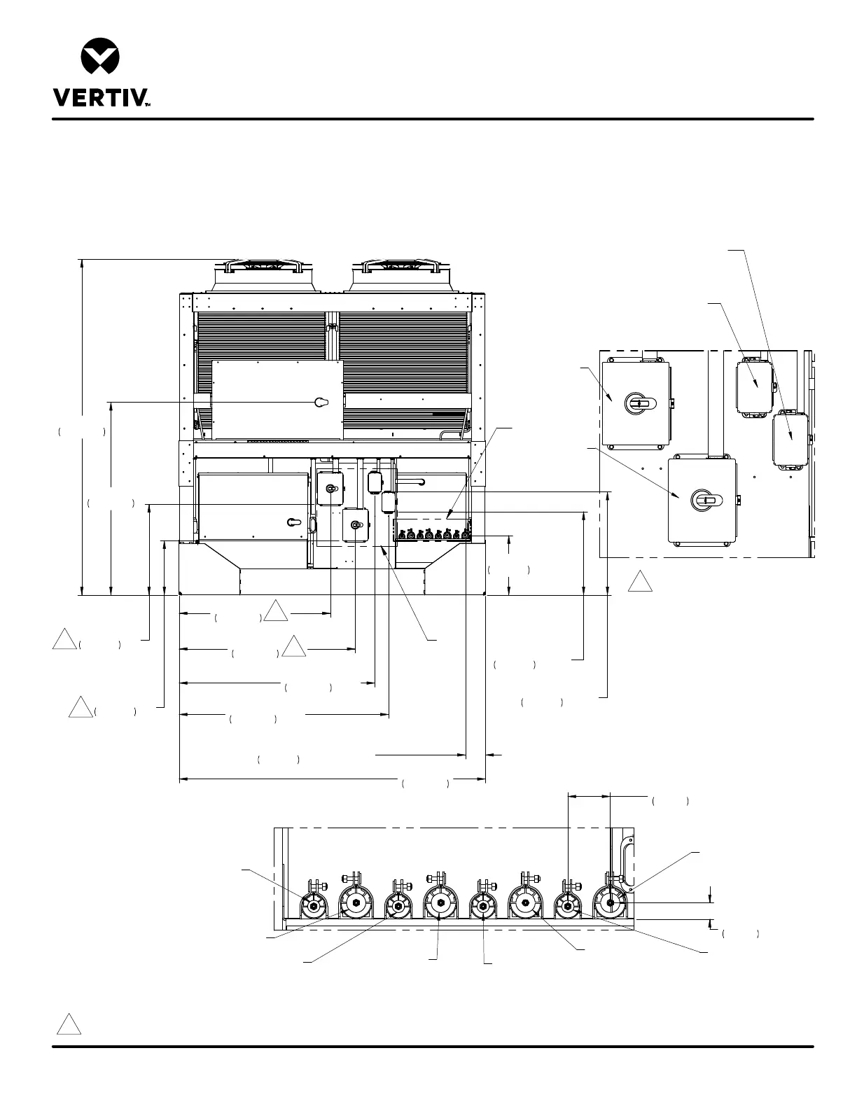
LIEBERT® MCV330 (2) + LIEBER ECONOPHASE (2)
+ BASE ASSY 460V & 575V
Form No.: DPN001040_REV4
PRIMARY CONNECTION LOCATIONS
LIEBERT
®
HEAT REJECTION SKID
DETAIL A
101 1/4"
2572mm
111"
2819mm
DETAIL B
58 3/16"
1478mm
CENTER OF BOX
50"
1269mm
CENTER OF BOX
6 5/8"
168mm
u (1/2" 12.7mm)
(FIELD ELECTRICAL CONNECTIONS)
(PIPING CONNECTIONS)
7/8" LIQUID LINE
SYSTEM 1 CIRCUIT 1
1 3/8" HOT GAS
SYSTEM 1 CIRCUIT 1
7/8" LIQUID LINE
SYSTEM 1 CIRCUIT 2
1 3/8" HOT GAS
SYSTEM 1 CIRCUIT 2
7/8" LIQUID LINE
SYSTEM 2 CIRCUIT 1
1 3/8" HOT GAS
SYSTEM 2 CIRCUIT 1
7/8" LIQUID LINE
SYSTEM 2 CIRCUIT 2
1 3/8" HOT GAS
SYSTEM 2 CIRCUIT 2
19 5/8"
498mm
ALL CONNECTIONS MADE FROM SYSTEM 1 END (SHOWN)
SYSTEM 1
CIRCUIT 1
SYSTEM 1
CIRCUIT 2
B
A
18"
457mm
BOTTOM OF BOX
30"
762mm
BOTTOM OF BOX
TYP.
1 3/16"
29mm
TYP
3"
76mm
u (1/2" / 13mm)
TYP.
LOW VOLTAGE CUSTOMER CONNECTION
SYSTEM 1
LOW VOLTAGE CUSTOMER CONNECTION
SYSTEM 2
64 11/16"
1644mm
CENTER OF BOX
69 3/16"
1758mm
CENTER OF BOX
27 1/2"
699mm
BOTTOM OF BOX
34"
864mm
BOTTOM OF BOX
63 11/16"
1617mm
Notes:
1. Field to provide hole for conduit for high voltage disconnect box and low voltage distribution panel.
2. High Voltage Customer Connection for:
Voltage Codes: A=(460V/3 Phase/60Hz); B=(575V/3 Phase/60Hz)
HIGH VOLTAGE
CUSTOMER
CONNECTION
SYSTEM 1
HIGH VOLTAGE
CUSTOMER
CONNECTION
SYSTEM 2
2
2
2
2
2

Table of Contents

Related product manuals