EasyManua.ls Logo

Vertiv Liebert MCV440 - Page 134

Vertiv Liebert MCV440
140 pages
Print Icon
To Next Page IconTo Next Page
To Next Page IconTo Next Page
To Previous Page IconTo Previous Page
To Previous Page IconTo Previous Page
Loading...
REV : B
REV DATE : 03/24
10032075
Page :2 /2
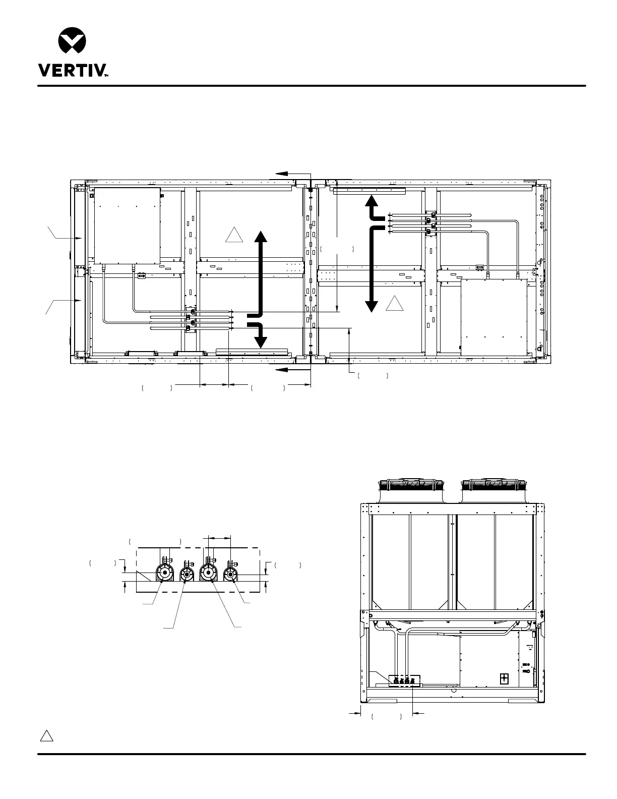
LIEBERT® MCV430 (2) + LIEBER ECONOPHASE (2)
+ BASE ASSEMBLY
Form No.: DPN001040_REV4
PRIMARY CONNECTION LOCATIONS
LIEBERT
®
HEAT REJECTION SKID
SECTION A-A
B
DETAIL B
Piping Connections
28 1/2"
725mm
3" ±1/2"
77mm ±13mm
TYP.
7/8"
23mm
TYP.
1 1/8"
30mm
TYP.
1-3/8" Liquid Line
Circuit 1
1-5/8" Hot Gas Line
Circuit 1
1-3/8" Liquid Line
Circuit 2
1-5/8" Hot Gas Line
Circuit 2
Left side of Unit
Right side of Unit
Front
of Unit
Rear
of Unit
15 5/8"
398mm
45 3/8"
1153mm
19 1/2"
497mm
72 3/4"
1847mm
Circuit 2
Circuit 1
NOTE:
1. For Top View, condenser section removed for clarity.
2. System 1 and 2 system piping connections can exist out left or right side of the unit.
Top View
Multiple customer connection locations
Piping connection dimensions are typical for both systems.
System 1
System 2
A
A
Main
Electrical
Panel
Circuit 1
Main
Electrical
Panel
Circuit 2
2
2

Table of Contents

Related product manuals