EasyManua.ls Logo

Westerbeke 20.0 BEDA - Page 30

Westerbeke 20.0 BEDA
72 pages
Print Icon
To Next Page IconTo Next Page
To Next Page IconTo Next Page
To Previous Page IconTo Previous Page
To Previous Page IconTo Previous Page
Loading...
I
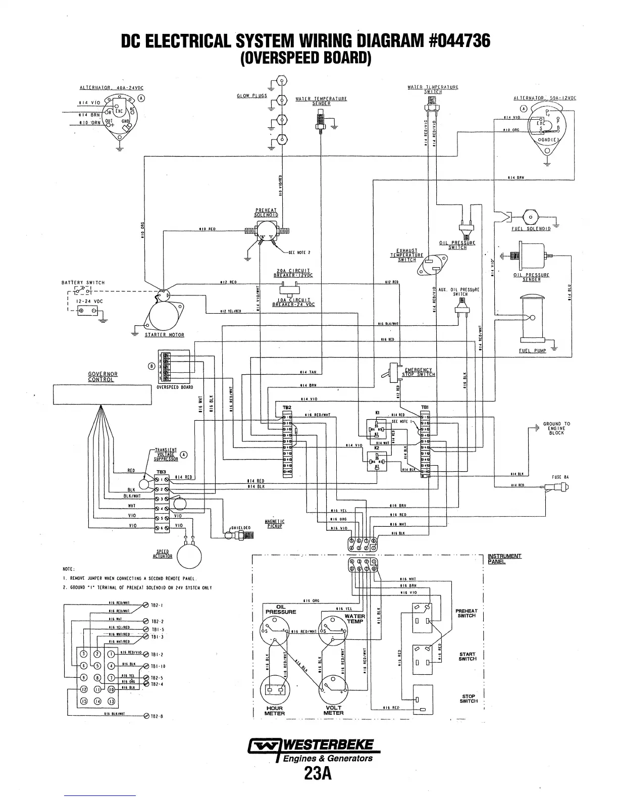
DC
ELECTRICAL
SYSTEM
WIRING
DIAGRAM
#044736
(OVERSPEED
BOARD)
AL
TtB~~
l'QB
~Qf!~Z4~f!t
.~@
......
,
<lA
BRN
R
(XC
~
"
"':"
~
fiORD
;
w'"' '"""
-~
r--,
r~£t------------
~
:_5l
0
-
~TA8IEB
f:IQIQB
gsmsrR
®~
I
OvrRSP[(D
BOARD
=
"'
~
~
-
~
~0
REO
,.1!!-
ll4REO
<:X~·
BLK
~
BlK/WHT
1--
....-:l.
WHT
~
( )
'
VIO
~~
l
VIO
~~
NOTE:
I.
R£MOV[
JUMP[R
Wfi.(ll'
COifN[CJING
A
S£C-OND-
R£toi0T[
PANEL.
1.
GROUND
'I'
TERMINAL
Of
PR£H£A1
SOLENOID
ON
ltV
S!Sl£M
ONil
.---1---"'l.m--~
181·1
rl--""'LW!!"'-.......;~
TBH
,:=t.m!!!!.l!.;:...:~
\&i·j
ll.!JllU.J.J!!ii
i<
D
Will.!l.~•.luR~
~
WAHR
:itatiATURE
~D
J
h
i<~
~
-
~
]f
?
iJmJ
,..
T
"'"'"
II
UliRU
!
114
RED
114
BtK
...fS~[D
::0
~
[[
1101£
1
J[rn«~
0
amBW1m,
IU
aro.
fJ.~t
9
lKt([~R£4.U.'JQr;,
i
AUX.
-
11511Iw1WU
Ill
RE~
fl4
TAN
d[J
!,S~H
1f411RN
ill
t14
YIO
.
I~
US
R[DIWHT
~!!!!
Kl .
IU
I[D
:::::
~SI!KOU'\~
-
~tk-
r
~
~
~
U4Vt0
U111t
t
1--
~
IC2
-
~
~
.
;
l>i
~
...
~~h
c:
Ill
Rll
...
"'
•ttDrn
~
Ill
ORG
Ill
WKl
~
..
"
~
~
HOUR
METER
Engines & Generators
23A
OIL
PRESSURE
SWITCH
.
~
£
.
~
.
HRNATOR. j,Q!,.:.lm&
'
® -
4
VIO
l
~
EXC}
'
...
s Jl
OGNtH[
0
114
BIIH
8--0--J_
[liE I
SQI
tHQtQ
":;"
.v-
011-aHUR£
.:
~
.
'--
f;-;:P
.J..
--~~!
GROUND
TO
t
ENGINE
BLOCK
1141U
rust
a•
111110
f""

Table of Contents

Related product manuals