EasyManua.ls Logo

Westerbeke 20.0 BEDA - Page 31

Westerbeke 20.0 BEDA
72 pages
Print Icon
To Next Page IconTo Next Page
To Next Page IconTo Next Page
To Previous Page IconTo Previous Page
To Previous Page IconTo Previous Page
Loading...
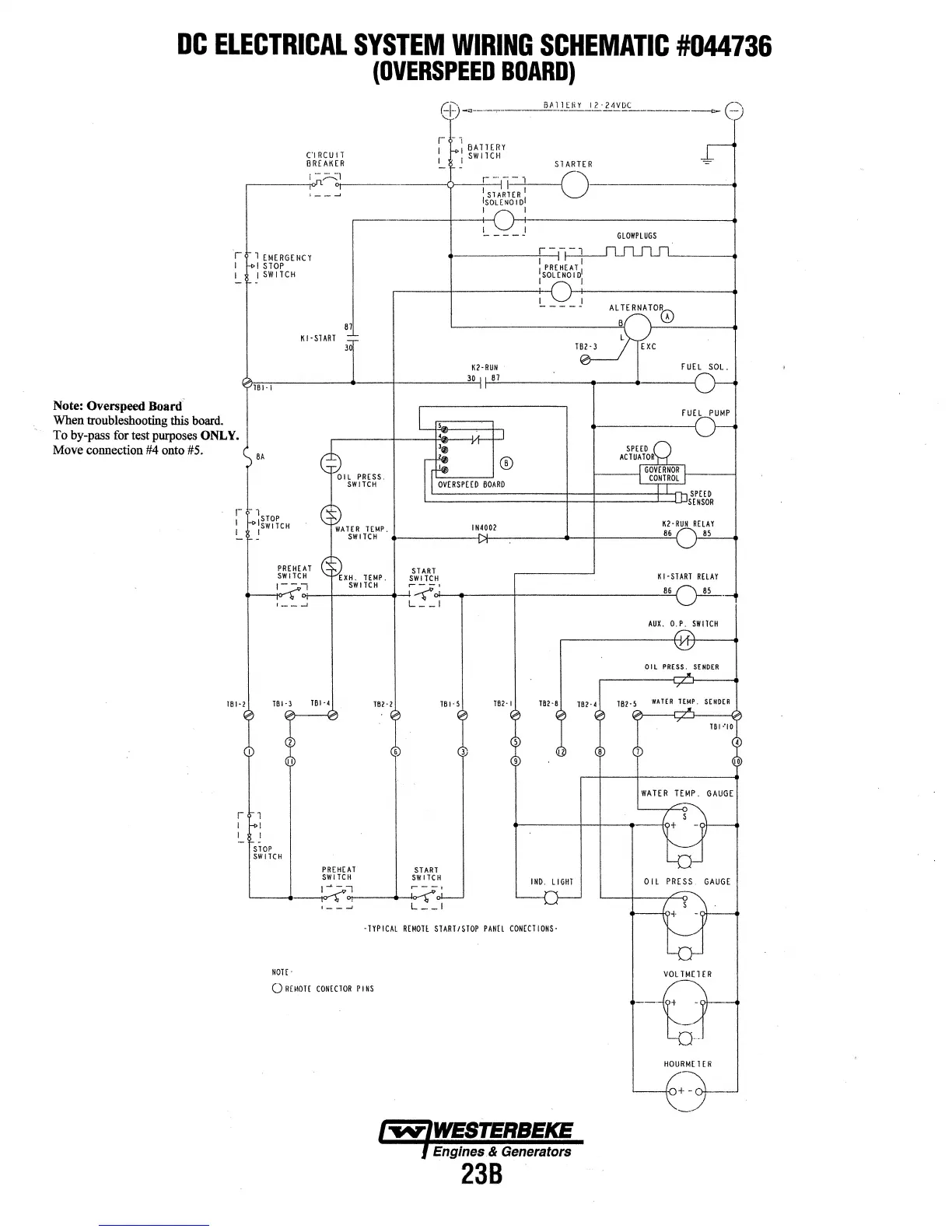
DC
ELECTRICAL
SYSTEM
WIRING
SCHEMATIC
#044736
(OVERSPEED
BOARD)
+)
-a----·---!'-!:6~
llEH
Y
17.
24VDC
-e
·r
1
£MERGEHCY
I I
STOP
I I SWITCH
~I-START
r
I
L
___
_!
r--
-,
·-------!-1-1
I
I
SPORLECHNEOAIT_,
I
~
L
___
_I
K2·RUN
~T~B~I-71
__________
~----+---------~3~0
87
Note:
Overspeed
Board'
When troubleshooting this
board.
To by-pass for test
purposes
ONLY.
Move
connection
#4
onto
#5.
BA
\ToP
lswl
TCH
I
PREHEAT
START
SWITCH
EXH.
TEMP.
SWITCH
IN4002
GlOWPLUGS
1
--~or-~--sw_I_T_c"-~~~~·~·~-.-----~----------------~
86
~
L--1
181-1
181·3 181-4
T82·2
T8H
START
SWITCH
TB2·1
1Bc·8
TBc·4
IND.
LIGHT
·TYPICAl
REMOll
SHRTiSTOP
PAN[l
CONECTIONS·
NOH·
0
R(J,UlT£
CON[CTOR
PINS
Engines
&
Generators
238
AUX.
O.P.
SWITCH
OIL
PftUS.
S[ND£R
WAT!R
TEMP..
S£HDER
1BI
'IO
Oil
PRESS
GAUGE
VOllMrl
ER
HOUR
ME
1
ER

Table of Contents

Related product manuals