EasyManua.ls Logo

YASKAWA SGMAS - Three-Phase 200 V, 1.0 Kw Models

YASKAWA SGMAS
177 pages
Print Icon
To Next Page IconTo Next Page
To Next Page IconTo Next Page
To Previous Page IconTo Previous Page
To Previous Page IconTo Previous Page
Loading...
3 SERVOPACK Specifications and Dimensional Drawings
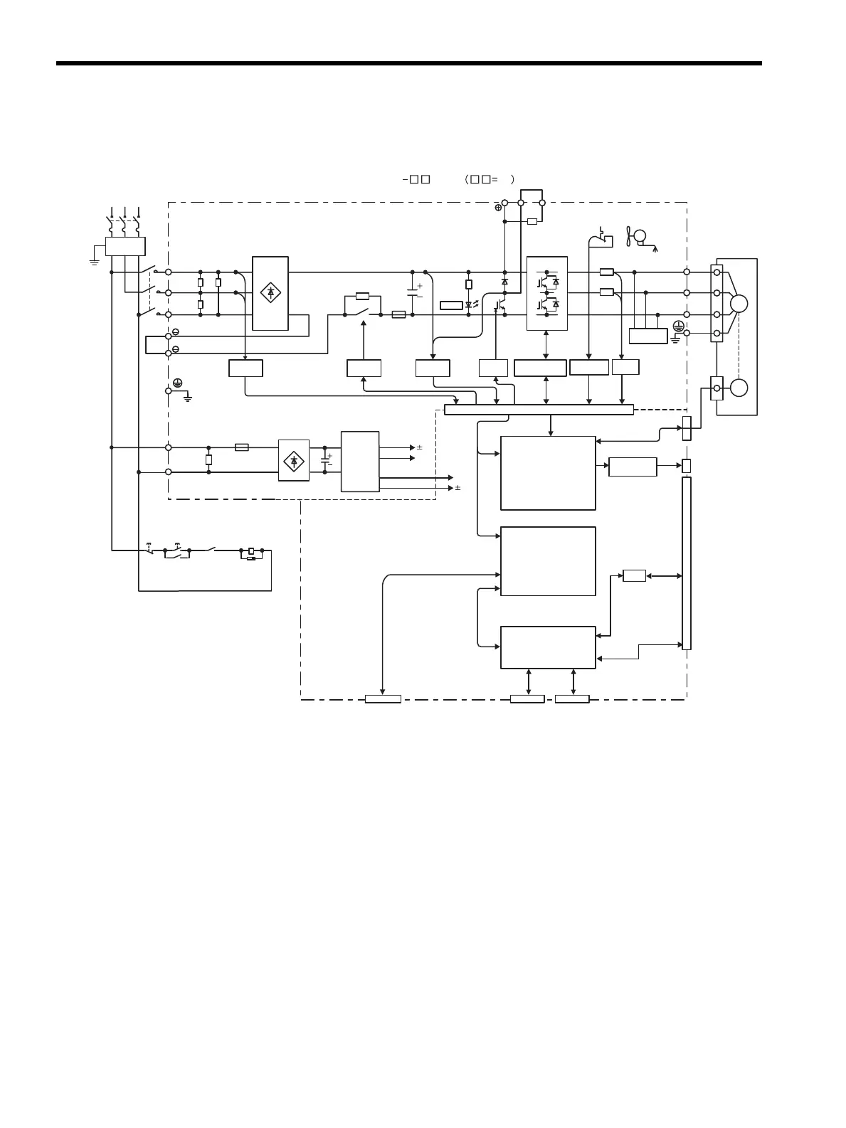
3.3.3 Three-phase 200 V, 1.0 kW Models
3-8
3.3.3 Three-phase 200 V, 1.0 kW Models
Three-phase 200 V, 1.0 kW Model SGDS A∗∗A 10
Three-phase
200 to 230 V
(50/60 Hz)
+10%
-15%
ASIC
(PWM control, etc.)
Servomotor
Noise
filter
Varistor
Varistor
Voltage
sensor
Dynamic
brake circuit
Surge
protector
Power
OFF
Power
ON
Open during
Servo alarm
CN51
1KM
L1
B1/ B2 B3
L2
L3
1
2
L1C
L2C
U
V
W
+15V
5V
12V
+5V
1KM
1KM
1Ry
CN2
PG
CHARGE
CN5
M
Voltage
sensor
Relay
drive
Gate drive over-
current protector
Gate
drive
Current
sensor
Temperature
sensor
Analog voltage
converter
Control
power
supply
Noise
filter
CPU
(Position/speed
calculation, etc.)
Digital Operator
Sequence I/O
FPGA (SynqNet
communications)
CN3 CN6A CN6B
SynqNet
External encoder
I/O
FAN1
±12V
SIEPS80000025.book 8 ージ 20  

Table of Contents

Related product manuals